Eladó lakás Szántód 32 500 000 Ft

Leírás

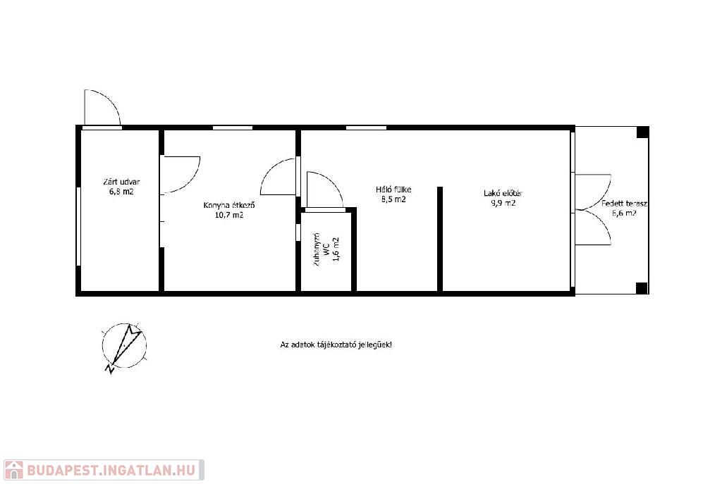
Balaton déli part, Szántód 31 m2 apartman eladó. A hivatalosan üzlethelyiségként nyilvántartott, de jelenleg apartmanként kialakított ingatlan Szántód RÉV-nél helyezkedik el, egy üzletsor szélső egységeként. A temperálás hűtő-fűtő klímával, meleg víz ellátás villanybojlerrel megoldott. A zárt térhez elől fedett terasz, hátul panorámás zárt kis udvar kapcsolódik. Az épület előtt parkolási és kivonulási lehetőség biztosított kereskedelmi szolgáltatás esetén. Az ingatlan kiválóan hasznosítható nyaralásra, kiadásra, kereskedelmi tevékenységre. Bővebb információért, megtekintésért keressen telefonon!

Az energetikai tanúsítvány készítése folyamatban van, amint rendelkezésre áll, úgy azzal a hirdetés frissítésre kerül.



Referencia szám: M279279

Lakás részletei

Ár: 32 500 000 Ft
Méret: 30 négyzetméter
Azonosító: 11395540
Irodai azonosító: M279279-4663473
Emelet: Földszint
Építőanyag: Tégla
Fűtés jellege: Villany
Ingatlan állapota: Átlagos
Komfort fokozat: Komfort
Építési év: 21-50 éves
Kilátás: kertre néző
Egész szobák: 2

Egyéb jellemzők

  • Erkély
  • Kocsibeálló

Térkép


Így keressen budapesti ingatlant négy egyszerű lépésben. Csupán 2 perc, kötelezettségek nélkül!

Szűkítse a budapesti ingatlanok
listáját
Válassza ki a megfelelő
budapesti ingatlant
Írjon a hirdetőnek
Várjon a visszahívásra