Eladó lakás Sopron 78 000 000 Ft

Leírás

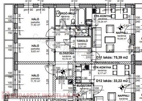
D11Hőszivattyúval és napelemmel működő fűtés- és melegvíz ellátás, mely nem jár költséggel!!!
Sopron kertvárosi övezetében, most induló új projekt keretében eladó egy 82 m2 méretű nappali+3 szobás, nagy erkélyes, 1. emeleti lakás.
A társasház kivitelezése jelenleg a korai szakaszban tart, ezért a most megvásárolt ingatlannál még lehet élni a kezdeti stádium előnyeivel.Tároló, teremgarázs, garázs és felszíni beálló is vásárolható.Magas szintű technológiai paraméterek, megtérülő befektetés.Hitel ügyintézésben segítséget nyújtunk.CSOK  igénybe vehető.

Vásárolna, de most nincs rá  pénzügyi keret? Kolléganőm, Szilágyi Melinda díjmentes, bankfüggetlen, személyre szabott hitel ügyintézéssel áll rendelkezésére.Amennyiben a ...........164302825......számú, vagy bármely kínálatunkban szereplő ingatlan felkeltette érdeklődését, hívjon a megadott telefonszámon, vagy forduljon a KÖZPONTI irodánkhoz, Sopron, Várkerület 19.  Tel: +36 99 386 607.

Lakás részletei

Ár: 78 000 000 Ft
Méret: 82 négyzetméter
Azonosító: 10894884
Irodai azonosító: 164302825
Emelet: 1. emelet
Építőanyag: Tégla
Ingatlan állapota:
Egész szobák: 4

Így keressen budapesti ingatlant négy egyszerű lépésben. Csupán 2 perc, kötelezettségek nélkül!

Szűkítse a budapesti ingatlanok
listáját
Válassza ki a megfelelő
budapesti ingatlant
Írjon a hirdetőnek
Várjon a visszahívásra