Eladó lakás Sopron 74 235 000 Ft

Leírás

Azonnal birtokba vehető Új kialakítású lakások eladóak, Sopron történelmi belvárosában!

Az épület Sopron belvárosának emblematikus helyén, az Orsolya teret a Várkerülettel összekötő Hátsókapu utca tört vonalának belső, városmag felőli részét foglalja el. A korai historizmus klasszicizáló stílusában épült kétemeletes lakóház Hasenauer Márton tervei alapján készült, ez volt Sopron első bérháza.

Az elmúlt időszakban fejeződött be az ingatlan teljeskörű korszerűsítése a Műemlékvédelmi hivatal Útmutatásai és szoros kontrollja alatt. Födémfelújítás-Teljes belső átépítés-Nyílászárók cseréje-Gépészet teljeskörű korszerűsítése (elektromos, víz, gáz és fűtésrendszer)-Homlokzatfelújítás-Burkolatok-Szaniterek-stb... Rendelkezésre áll az épület használatbavételi engedélye és a Társasház Alapító Okirat is elkészült. A teljesen újjávarázsolt épület A és B épületrészből áll, belső udvarral rendelkezik, mely a vársétány koncepció szerves része.

A közös használatú épületrészek:
- Közlekedők (kerámia burkolattal), LED-es mozgásérzékelős világítás a lépcsőházakban és közlekedőkben.
- Hulladék- és kerékpártárolók külön helyiségekben
- Az épületgépészeti helyiség a pinceszinten kiépítve ( 2 db nagy teljesítményű kondenzációs gázkazán, kétkürtős SCHIEDEL kéménnyel)
- A pinceszinten különböző méretű, teljesen elszeparált és zárható privát tárolók lettek kialakítva, melyek a lakásokhoz megvásárolhatók.

Az impozáns lakóházban összesen húsz, különböző alapterületű lakás került kialakításra, egy, kettő és három szobás elrendezéssel, földszinti, első és második emeleti valamint tetőtéri lakások választhatók. Minden ingatlan kulcsrakész állapotban várja leendő tulajdonosát.
A lakások vételára tartalmazza az adásvételi szerződéssel kapcsolatos ügyvédi munkadíjat, valamint a tulajdonjog bejegyzéssel kapcsolatos költségeket is!

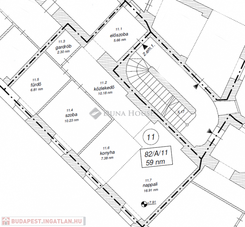
A 11 lakás: A második emeleti ingatlan 59 m2 alapterületű, amerikai konyhás nappali, egy hálószoba, gardrób és fürdőszoba kapott helyet benne, a hangulatos lakás tágas, világos, délnyugati tájolású, kilátással a sétáló utcára...

Az ingatlanok megfelelnek a 3%-os OTTHON Start Hitel feltételeinek! További információkért keressen bizalommal!

Lakás részletei

Ár: 74 235 000 Ft
Méret: 59 négyzetméter
Azonosító: 11594833
Irodai azonosító: PR068430/LK/27057-5131281
Emelet: 2. emelet
Építőanyag: Tégla
Fűtés jellege: Házközponti (egyedi mérővel)
Ingatlan állapota: Kitűnő
Komfort fokozat: Összkomfort
Építési év: 1-5 éves
Kilátás: utcai
Egész szobák: 2

Egyéb jellemzők

  • Tároló

Térkép


Így keressen budapesti ingatlant négy egyszerű lépésben. Csupán 2 perc, kötelezettségek nélkül!

Szűkítse a budapesti ingatlanok
listáját
Válassza ki a megfelelő
budapesti ingatlant
Írjon a hirdetőnek
Várjon a visszahívásra