Eladó lakás Sopron, Belváros, 53 900 000 Ft

Leírás

Belvárosi 2 szobás
Belvárosi Ékszerdoboz Sopron Szívében – Kiváló Elrendezés, Fiatalos Hangulat!

Eladóvá vált egy rendkívül jó adottságokkal rendelkező, bruttó 73 nm-es (nettó 55 nm) tetőtéri lakás Sopron történelmi belvárosának közvetlen közelében! Ha szereted a várost, de vágysz a nyugalomra is, ez az ingatlan tökéletes választás számodra.

Az ingatlan főbb jellemzői:

- Kiváló elhelyezkedés: Sopron belvárosa, minden karnyújtásnyira (boltok, éttermek, közlekedés).

- Építés éve: 1993 – stabil, jó állapotú társasház

- Emelet: 3. emelet (tetőtéri elhelyezkedés, nincs felső szomszéd!)

- Alapterület: Bruttó 73 nm / Nettó 55 nm – a tágas terek és a praktikus kihasználhatóság találkozása.

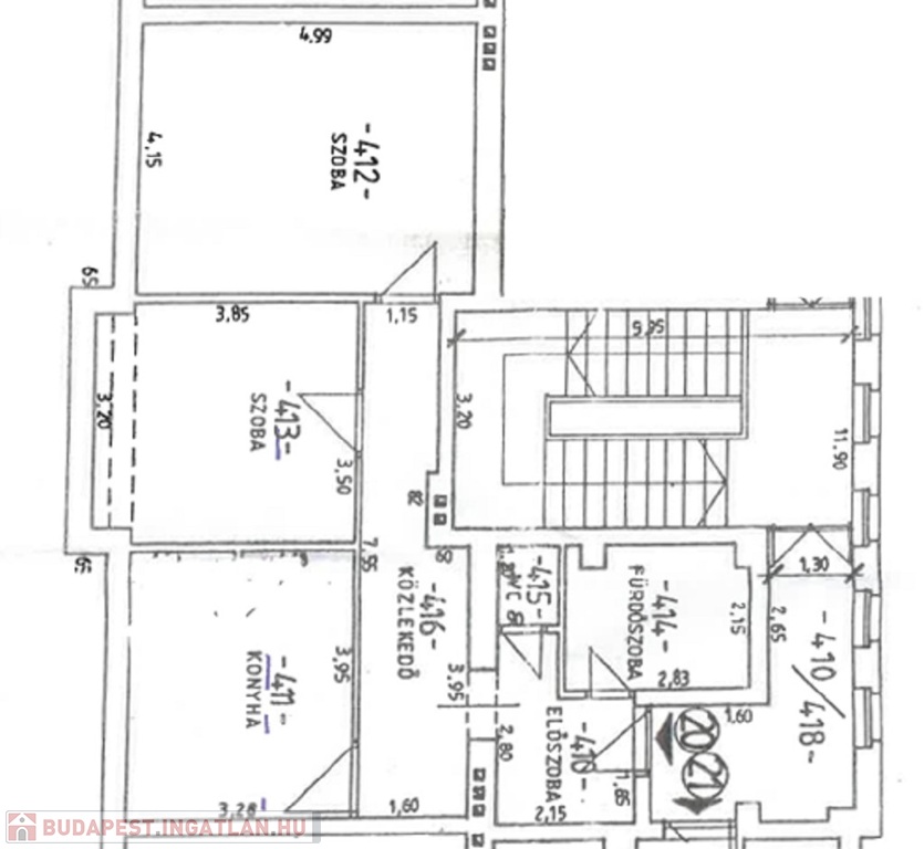
- Elrendezés: 2 különnyíló, világos szoba, kényelmes konyha-étkező és fürdőszoba

- Gáz-cirkó kazán

- 5 éves velux ablakok

- 14.000 közös költség

- pincében szokásjog alapján saját tároló kb 10 nm

Befektetők esetén a jelenlegi bérlő szívesen maradna. AZ ÁR AZ ÖSSZES BÚTORT TARTALMAZZA!!!

✨ Miért érdemes ezt a lakást választanod?

A lakás belső kialakítása barátságos és világos. A bruttó 73 négyzetméter rengeteg tárolási lehetőséget és tágas érzetet biztosít, miközben a nettó 55 négyzetméter után fizeted a fenntartási költségeket. Ideális választás fiatal pároknak első lakásnak, vagy befektetőknek kiadásra, hiszen a belvárosi lokáció miatt azonnal bérbe adható.

Lakás részletei

Ár: 53 900 000 Ft
Méret: 55 négyzetméter
Azonosító: 11614652
Irodai azonosító: H516795
Városrész: Belváros
Emelet: 3. emelet
Építőanyag: Tégla
Fűtés jellege: Cirkó
Ingatlan állapota:
Komfort fokozat: Összkomfort
Építési év: 11-20 éves
Bútorozott: Bútorozott
Kilátás: utcai
Kert: Nincs
Egész szobák: 2

Egyéb jellemzők

  • Erkély
  • Garázs
  • Klíma
  • Lift
  • Pince
  • Kertkapcsolat
  • Tároló
  • Kocsibeálló

Így keressen budapesti ingatlant négy egyszerű lépésben. Csupán 2 perc, kötelezettségek nélkül!

Szűkítse a budapesti ingatlanok
listáját
Válassza ki a megfelelő
budapesti ingatlant
Írjon a hirdetőnek
Várjon a visszahívásra