Eladó lakás Siófok 285 000 000 Ft

Leírás

Közvetlen vízpart, elvehetetlen balatoni örök panoráma
- értékálló befektetés
- igényes tervezés
- minőségi kivitelezés
- remek kihasználhatóság
- közvetlen vízparti elhelyezkedés

Az apartmanházak a Balatonra merőlegesen helyezkednek el, így biztosítva az apartmanok örök balatoni panorámát boldog tulajdonosainak.
A lakások megközelítését a földszintről és a parkolókból 8 személyes OTIS felvonóval biztosított.
Az épület hőszigetelési rendszere a 2021-től érvényes energetikai szabványoknak megfelelő, amit 3 rétegű argon gázzal kitöltött GEALAN profilból épített műanyag nyílászárók és a 15 cm vastag külső hőszigeteléssel ellátott STO vékony vakolatrendszer biztosítja. A homlokzatképzés színes műgyantakötésű STO színezővakolattal, átlagban 15 cm vastag EPS és ásványgyapot hőszigeteléssel és Travertin mészkőburkolat kivitelezésével történik majd. Nyílászáróink 3-rétegű üvegezéssel készülnek, külső oldalon színes felülettel. A közös területek, folyosók, teraszok I. osztályú szürke/homokszín kőporcelán lapokkal vannak burkolva.
A lakások fűtését és hűtését apartmanonként elhelyezett inverteres hőszivattyús levegős rendszer látja el, működése kivételesen energia-hatékony.
A szobákba, nappalikba felszerelt beltéri egységek léghűtést és légfűtést biztosítanak, melynek köszönhetően rendkívül gyorsan hűtik le vagy fűtik fel a helyiséget.
A társasház tetején exkluzív panorámás tetőteraszok kerültek kialakításra, melyek egyedileg lettek leválasztva, hogy a lehető legnagyobb privát szférát biztosítsák a tulajdonosainak. A tetőteraszon vízvételi, áramvételi lehetőség van, melyet lépcsőn lehet megközelíteni, így minden lehetőség adott egy kellemes, baráti, panorámás rooftop party-hoz.
A beépítendő anyagok kiválasztásánál, a magas minőség elengedhetetlen szempont volt számunkra. A lakáselválasztó falak fokozott hangszigetelésűek, Silka téglából vagy vasbeton falból épülnek fel. A födémekben 9 cm vastag hő/hangszigetelő táblák akadályozzák meg a függőleges irányú hangterjedést, ezzel biztosítható a csendes, meghitt környezet.
A teraszkorlátok rozsdamentes-szálcsiszolt oszlopok és kapaszkodók lesznek, ragasztott biztonsági üvegtáblákkal.
A lakásokon belüli anyagok kiválasztása a leendő lakástulajdonos privilégiuma lesz, hogy minden tulajdonos saját ízlése, elképzelése szerint alakíthassa ki álmai nyaralóját/lakását.
Vásárolja meg „második otthonát”, ahol akár egész évben élvezheti a korszerű apartman kényelmét.

Lakás részletei

Ár: 285 000 000 Ft
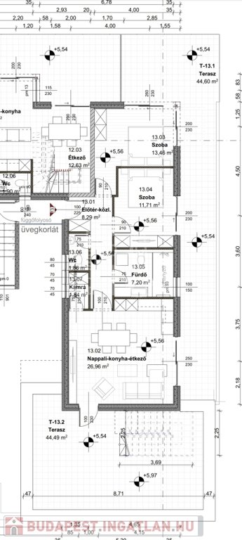
Méret: 75 négyzetméter
Azonosító: 11558428
Irodai azonosító: 386337
Cím: Siófok
Emelet: 2. emelet
Építőanyag: Tégla
Fűtés jellege: Hőszivattyú
Ingatlan állapota: Kitűnő
Komfort fokozat: Dupla komfort
Építési év: Új építésű
Tulajdonviszony: Saját
Kilátás: panorámás
Egész szobák: 2
Fél szobák: 1

Egyéb jellemzők

  • Erkély
  • Garázs
  • Lift
  • Pince
  • Tároló

Térkép


Így keressen budapesti ingatlant négy egyszerű lépésben. Csupán 2 perc, kötelezettségek nélkül!

Szűkítse a budapesti ingatlanok
listáját
Válassza ki a megfelelő
budapesti ingatlant
Írjon a hirdetőnek
Várjon a visszahívásra