Eladó lakás Siófok 117 300 000 Ft

Leírás

SIÓFOK EZÜSTPART – KÖZVETLEN VÍZPARTI LUXUS: Örökpanoráma és jövőbe mutató technológia!

Figyelem! Több lakás is elérhető különböző árban és méretben. További információért hívjon!

Felejtse el a kompromisszumokat! Siófok egyik legpatinásabb részén, az Ezüstparton kínálok eladásra prémium lakásokat, ahol a Balaton nemcsak a szomszédja, hanem a mindennapjai része. Lépjen ki a kapun, és máris a szabadstrandon vagy a sétányon találja magát. Itt a reggeli kávé mellé elvehetetlen örökpanoráma jár.

Műszaki előny (Amiért ez jobb, mint a többi): Az ingatlan nemcsak szép, hanem okos és fenntartható is. A legmodernebb energetikai megoldásokkal épül, hogy Önnek csak a pihenéssel kelljen foglalkoznia:

• FIBARO Okosotthon Rendszer: Vezérelje telefonjáról a hűtést, fűtést, világítást, árnyékolást, riasztót a világ bármely pontjáról!
• VRF Inverteres Hőszivattyú: Rendkívül gyors, energiahatékony hűtés-fűtés minden helyiségben.
• Prémium Szigetelés: 15 cm-es STO vakolatrendszer és 3 rétegű nyílászárók az alacsony rezsiért és a maximális csendért.
• Hanggátló Falak: Silka téglából épült lakáselválasztók a zavartalan magánszféra érdekében.
• Liftek: 6 személyes, modern felvonók a parkolótól egészen a legfelső szintig.

Exkluzív Extrák:

• Rooftop Életérzés: A legfelső szinten egyedi, szeparált tetőteraszok (víz- és áramvétellel) a tökéletes kikapcsolódáshoz.
• Parkosított Környezet: Automata öntözőrendszerrel gondozott kert és Viacolor burkolatú kocsibeállók (6 millió forint).
• Biztonság: Távirányítós kapu, kaputelefon és becsövezett riasztó-előkészítés minden egységben.
• Egyedi Kialakítás: A burkolatokat és szanitereket saját ízlése szerint választhatja ki, hogy a lakás valóban az Ön stílusát tükrözze!

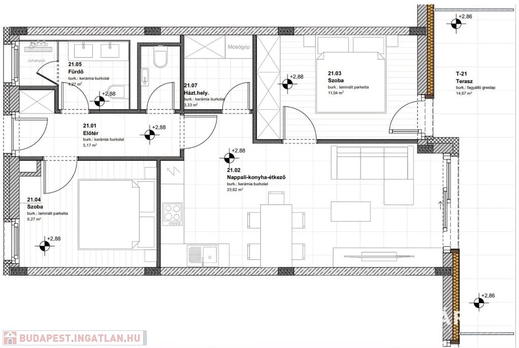
A hirdetés erre a lakásra vonatkozik (1. emelet, 21-es lakás – Panorámás):
• Terület: 61 m² lakótér + 15 m² panorámás terasz!
• Elosztás: Előtér, tágas amerikai konyhás nappali-étkező (konyhabútor nem tartozék), 2 db kényelmes hálószoba, háztartási helység, fürdő és külön WC.
• A teraszra a nappaliból és az egyik hálóból is közvetlen kijárás biztosított.
Lokáció:
• Vasútállomás: 900 méter (12 perc séta)
• Éttermek, fagyizók: 2-300 méteren belül
• Közvetlen szabadstrandi csatlakozás

Várható átadás: 2026. december (a projekt már szerkezetkész, jelenleg a belső munkálatok folynak).

Ideális választás akár nyaralónak akár befektetésnek. Az ingatlan elhelyezkedése és felszereltsége miatt kiemelkedő hozamot biztosít rövid- és hosszú távú kiadás esetén is.

Ne maradjon le a kezdő ütem előnyeiről! Vegye meg most, és kísérje végig álmai otthonának felépülését. Ne kössön kompromisszumot mások választásával, álmodja meg saját otthona hangulatát!

További részletekért és megtekintésért keressen bizalommal a hét bármely napján!
(További képekért és információkért kérem hívjon!)

Lakás részletei

Ár: 117 300 000 Ft
Méret: 61 négyzetméter
Azonosító: 11608439
Irodai azonosító: 707979
Erkély mérete: 15.00 négyzetméter
Építőanyag: Tégla
Fűtés jellege: Hőszivattyú
Ingatlan állapota: Kitűnő
Komfort fokozat: Összkomfort
Egész szobák: 3
Fél szobák: 1
Nappalik: 1

Egyéb jellemzők

  • Erkély
  • Garázs
  • Klíma
  • Lift
  • Pince
  • Kertkapcsolat

Így keressen budapesti ingatlant négy egyszerű lépésben. Csupán 2 perc, kötelezettségek nélkül!

Szűkítse a budapesti ingatlanok
listáját
Válassza ki a megfelelő
budapesti ingatlant
Írjon a hirdetőnek
Várjon a visszahívásra