Eladó lakás Putnok 6 000 000 Ft

Leírás


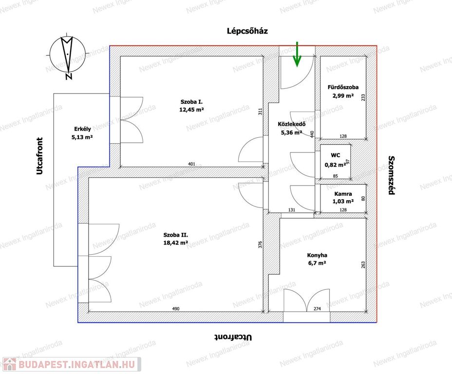
Eladó Putnok városában egy 48 m²-es, téglaépítésű lakás, amely kiváló választás lehet első otthonnak, fiatal pároknak, kisebb családoknak.



Az ingatlan két külön nyíló szobával rendelkezik, praktikus elrendezésének köszönhetően jól bútorozható és élhető tereket biztosít. Az összkomfortos lakás minden alapvető kényelmi funkcióval ellátott, így azonnal költözhető, ugyanakkor átlagos állapota lehetőséget ad arra, hogy az új tulajdonos saját ízlésére, elképzelései szerint újítsa fel vagy korszerűsítse.

 

A társasház kivülről jó esztétikai állapotú,a lépcsőházra ráfér egy ráncfelvarrás, rendezett környezetben található. A lakás délnyugati tájolású, ennek köszönhetően világos, napfényes, ami kellemes, barátságos lakóklímát teremt a nap nagy részében.

 

A fűtésről gázkonvektorok gondoskodnak. A parkolás ingyenesen, közvetlenül az utcán megoldott.

Az ingatlan jól megközelíthető, a mindennapi élethez szükséges szolgáltatások könnyen elérhetőek.

 

Ne hagyja ki ezt a kedvező adottságokkal rendelkező lakást!

További információért vagy megtekintés egyeztetéséhez keressen bizalommal!

„Az ingatlan energetikai besorolásának meghatározása jelenleg folyamatban van.

Lakás részletei

Ár: 6 000 000 Ft
Méret: 48 négyzetméter
Azonosító: 11588733
Irodai azonosító: 698900750
Emelet: 2. emelet
Építőanyag: Tégla
Fűtés jellege: Konvektoros
Ingatlan állapota: Átlagos
Komfort fokozat: Összkomfort
Egész szobák: 2

Egyéb jellemzők

  • Lift

Így keressen budapesti ingatlant négy egyszerű lépésben. Csupán 2 perc, kötelezettségek nélkül!

Szűkítse a budapesti ingatlanok
listáját
Válassza ki a megfelelő
budapesti ingatlant
Írjon a hirdetőnek
Várjon a visszahívásra