Eladó lakás Pécs 110 000 000 Ft

Leírás

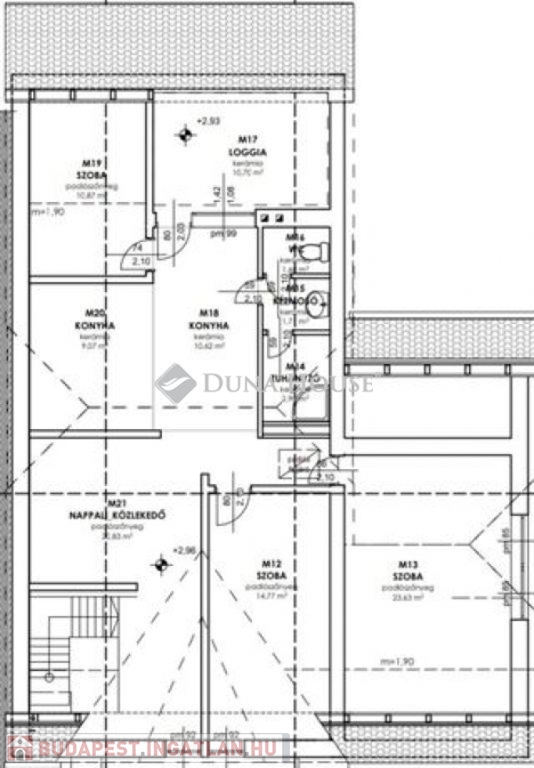
Eladásra kínálunk egy egyszintes, 130m2-es , tégla szerkezetű, kertkapcsolatos lakást, amely nem csak egy lakóhely, hanem egy otthon, ahol az élet minden szépsége kiteljesedhet. A ház 1 nappalival és további 4 szobával rendelkezik, amelyek tágasak és világosak, köszönhetően a jól megtervezett elrendezésnek.Az ingatlan a kertkapcsolatnak köszönhetően különleges lehetőséget kínál a szabadtéri tevékenységekhez. A kert gondosan ápolt, tökéletes hely a kikapcsolódáshoz, a gyerekek játékára vagy akár egy családi barbecue est szervezésére.Belépve a tágas előszobába, azonnal érezhető a nyugodt, családias hangulat, amit a természetes fény és a modern, mégis időtálló belső kialakítás is erősít. A nappali a központi helyiség, ahol a család és a barátok összegyűlnek, hogy kellemes időt töltsenek együtt. A konyha és az étkező egy légtérben helyezkedik el, ideális helyszín a közös főzésekhez és étkezésekhez.

Lakás részletei

Ár: 110 000 000 Ft
Méret: 130 négyzetméter
Azonosító: 11597933
Irodai azonosító: LK012211-5142140
Cím: Pécsi eladó 130 nm-es lakás
Emelet: Földszint
Építőanyag: Tégla
Fűtés jellege: Cirkó
Ingatlan állapota: Kitűnő
Építési év: 21-50 éves
Egész szobák: 5

Egyéb jellemzők

  • Erkély
  • Klíma

Térkép


Így keressen budapesti ingatlant négy egyszerű lépésben. Csupán 2 perc, kötelezettségek nélkül!

Szűkítse a budapesti ingatlanok
listáját
Válassza ki a megfelelő
budapesti ingatlant
Írjon a hirdetőnek
Várjon a visszahívásra