Eladó lakás Nyíregyháza 64 900 000 Ft

Leírás

Irányár: 64,9 millió FtTelefon: +36 20 926 8433
Eladó teljesen felújított lakás a Vasgyár utcában
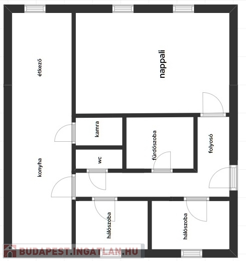
Belváros szélén, a Vasgyár utcában eladásra kínálok egy 64 m² alapterületű, kiváló elosztású lakást. Az ingatlan egy tégla építésű, négy szintes társasház harmadik emeletén található.
A lakás két hálószobával, nappalival, valamint konyha–étkezővel rendelkezik, így családok számára is ideális választás lehet.
Az ingatlan teljes körű felújításon esett át, melynek során:– megújult a teljes víz- és elektromos vezeték hálózat,– új, háromrétegű üvegezésű nyílászárók kerültek beépítésre,– új beltéri és bejárati ajtók lettek beszerelve,– vadonatúj konyhabútor került beépítésre,– felújított fürdőszoba,– valamint új világítótestek kerültek felszerelésre.
A lakás mért távfűtéssel rendelkezik.
Parkolás zárt udvaron megoldott.
Az ingatlan tehermentes és azonnal birtokba vehető, így akár rövid időn belül költözhető.Az ingatlan azonosítója: 99959Érdeklődni: +36209268433 Az ingatlan azonosítója: 99959 Érdeklődni: +36209268433

Lakás részletei

Ár: 64 900 000 Ft
Méret: 64 négyzetméter
Azonosító: 11604835
Irodai azonosító: 99959
Emelet: 3. emelet
Építőanyag: Tégla
Fűtés jellege: Távfűtés
Ingatlan állapota: Felújított
Építési év: 21-50 éves
Egész szobák: 2

Egyéb jellemzők

  • Lift

Így keressen budapesti ingatlant négy egyszerű lépésben. Csupán 2 perc, kötelezettségek nélkül!

Szűkítse a budapesti ingatlanok
listáját
Válassza ki a megfelelő
budapesti ingatlant
Írjon a hirdetőnek
Várjon a visszahívásra