Eladó lakás Nyíregyháza, Hímes, 50 900 000 Ft

Leírás

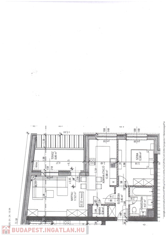
Nyíregyházán, az egyetem és a stadion közelében eladásra kínálok egy 52,22 nm-es, erkélyes, 2. emeleti ingatlant. Az egyetem közelsége miatt befektetési szempontból kiváló helyen van ez az újonnan épülő társasházi lakás, így ajánlom mindazoknak a figyelmébe, akik kiadás szempontjából keresnek ingatlant. Az építkezés várható befejezése 2026 tavasza. 
További jellemzők:

Tégla építés
1 szoba + amerikai konyhás nappali
Fűtése: egyedi gáz
Hűtő-fűtő klíma
Burkolat: járólap és szalagparketta
Erkély (8,09 nm)
K-NY-i fekvés

A lakás mellé külön megvásárolható garázs 9M Ft-ért vagy kocsibeálló 2,5M Ft-ért.
 
Amennyiben további információra lenne szüksége az eladó lakásokkal kapcsolatban várom hívását!Az ingatlan azonosítója: 67020Érdeklődni: 06302669818 Az ingatlan azonosítója: 67020 Érdeklődni: 06302669818

Lakás részletei

Ár: 50 900 000 Ft
Méret: 52 négyzetméter
Azonosító: 11544246
Irodai azonosító: 67020
Városrész: Hímes
Emelet: 2. emelet
Építőanyag: Tégla
Fűtés jellege: Cirkó
Ingatlan állapota: Épülő
Egész szobák: 1

Egyéb jellemzők

  • Lift

Így keressen budapesti ingatlant négy egyszerű lépésben. Csupán 2 perc, kötelezettségek nélkül!

Szűkítse a budapesti ingatlanok
listáját
Válassza ki a megfelelő
budapesti ingatlant
Írjon a hirdetőnek
Várjon a visszahívásra