Eladó lakás Nyíregyháza 37 900 000 Ft

Leírás

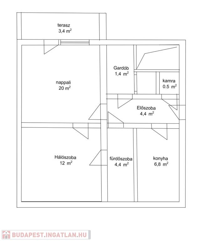
Nyíregyházán, a Deák Ferenc úton eladásra kínálok egy 55 nm-es, 1 szoba + nappalis, erkélyes lakást. Az ingatlan szigetelt, tégla építésű társasház 3. emeletén helyezkedik el.
További információk:

Műanyag nyílászárók
K-Ny-i festés
Fűtése: gázkonvektoros
2 külön nyíló szoba
Járólap és parketta burkolatok
Erkély
Gardrób
Spájz
Saját tároló
Tehermentes

Amennyiben további információra lenne szüksége, vagy szeretné megtekinteni az ingatlant, várom hívását! Jöjjön és nézze meg!
Ingatlanirodánk több éves tapasztalattal, megbízható háttérrel és teljes körű ügyintézéssel áll az Ön rendelkezésére a teljes értékesítési folyamat során a megtekintéstől a sikeres adásvételig.
 Az ingatlan azonosítója: 69594Érdeklődni: 06302669818 Az ingatlan azonosítója: 69594 Érdeklődni: 06302669818

Lakás részletei

Ár: 37 900 000 Ft
Méret: 55 négyzetméter
Azonosító: 11595253
Irodai azonosító: 69594
Emelet: 3. emelet
Építőanyag: Tégla
Fűtés jellege: Konvektoros
Ingatlan állapota:
Építési év: 50 évesnél régebbi
Egész szobák: 1

Egyéb jellemzők

  • Lift

Így keressen budapesti ingatlant négy egyszerű lépésben. Csupán 2 perc, kötelezettségek nélkül!

Szűkítse a budapesti ingatlanok
listáját
Válassza ki a megfelelő
budapesti ingatlant
Írjon a hirdetőnek
Várjon a visszahívásra