Eladó lakás Nagykanizsa, Belváros, 53 500 000 Ft

Leírás

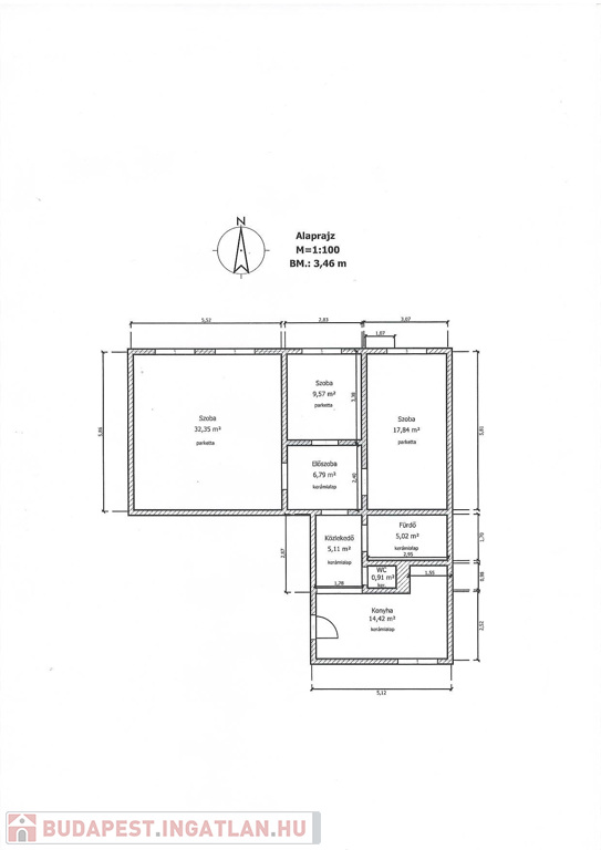
BELVÁROSI TÉGLALAKÁS ELADÓ NAGYKANIZSÁN – 93 M², 3 SZOBÁS, ZÁRT UDVARI PARKOLÓVAL, PANORÁMÁS KILÁTÁSSAL A DEÁK TÉRRE!

Eladó Nagykanizsa belvárosának egyik legjobb lokációján, a Deák tér közvetlen közelében, egy 2. emeleti, 93 m²-es, téglaépítésű, 3 szobás, felújított lakás, zárt udvari gépkocsi-beállóval, azonnali költözéssel!

A lakás jellemzői:
3 tágas, világos szoba
Belmagasság: 3,45 m – polgári elegancia
Kilátás a Deák térre, városi panorámával
Beépített gardróbszekrény a folyosón
Külön WC és fürdőszoba káddal és különálló zuhanyzóval
Fűtés: gázkonvektoros
Meleg víz: villanybojler
Nyílászárók: műanyag és fa, redőnnyel
Állapot: azonnal költözhető, teljes bútorzattal eladó

Tartozékok és extrák:
Önálló, zárható tároló a pincében
Közös biciklitároló az udvarban
Saját parkolóhely a zárt udvarban
Utcai parkolási lehetőség közvetlenül a bejárat előtt (Deák térnél)

Kiváló elhelyezkedés – minden sétatávolságra:
Buszmegálló közvetlenül az épület előtt
Iskola, óvoda, bolt, piac, posta, kórház pár perc alatt elérhető
Ideális befektetésnek is – könnyen kiadható, keresett lokáció!

Az ingatlan tehermentes, azonnal birtokba vehető!
Ha olyan belvárosi otthont keresel, ami egyszerre tágas, jól felszerelt és prémium elhelyezkedésű, ez az ingatlan garantáltan nem fog csalódást okozni.

Ne várj, egyeztess időpontot még ma – ilyen lehetőség ritkán adódik!

Amennyiben a vársárláshoz szüksége van hitelre, jogosult a Magyarország Kormánya által nyújtott 3%-os Otthon Start programra, vagy a gyermekvállaláshoz kötött Babaváróra, vissza nem térítendő állami támogatásra Falusi CSOK-ra, vagy a vagy CSOK+ - ra, irodánkban - a CSASZI Ingatlan és Hitelirodában - bank semleges, független hitelszakértő 19 éves szakmai tapasztalattal és kiváló banki kapcsolatokkal díjmentesen segíti a legkedvezőbb pénzügyi konstrukció kiválasztását és a hitelkérelem teljes körű összeállítását. Ügyvédi kapcsolataink révén az adásvételi szerződést is tudjuk rugalmasan szervezni.
Irodánkban mindent egyszerűen és egy helyen intézhet!
Irodánk további kínálatait megtekintheti a www.csaszi.com weboldalon.

Lakás részletei

Ár: 53 500 000 Ft
Méret: 93 négyzetméter
Azonosító: 11553638
Irodai azonosító: 3692
Cím: Deák Ferenc tér
Városrész: Belváros
Rezsi: 25 365 Ft/hó
Emelet: 2. emelet
Építőanyag: Tégla
Fűtés jellege: Konvektoros
Ingatlan állapota:
Komfort fokozat: Komfort
Építési év: 50 évesnél régebbi
Elhelyezkedés: Társasház
Tulajdonviszony: Saját
Bútorozott: Részben bútorozott
Kilátás: utcai
Kert: Közös telek
Egész szobák: 3

Egyéb jellemzők

  • Erkély
  • Garázs
  • Klíma
  • Lift
  • Pince
  • Kertkapcsolat
  • Tároló
  • Kocsibeálló

Térkép


Így keressen budapesti ingatlant négy egyszerű lépésben. Csupán 2 perc, kötelezettségek nélkül!

Szűkítse a budapesti ingatlanok
listáját
Válassza ki a megfelelő
budapesti ingatlant
Írjon a hirdetőnek
Várjon a visszahívásra