Eladó lakás Mogyoród 95 500 000 Ft

Leírás

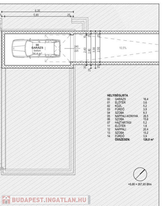
Mogyoród csendes kertvárosi részén eladó egy új építésű ikerház egyik felének födszinti lakása,mely kiváló választás lehet családok számára. 68,3 nm-es lakótérrel, egy 11,24 nm-es terasszal,egy 16,4 nm-es garázzsal és egy 400 nm-es kerttel biztosítja a családi életet. Elrendezését tekintve igazán jól átgondolt, 1 fürdőszoba, 2 különnyíló szoba, 1 háztartási helyiség és egy nagy amerikai konyhás nappali teszi kényelmessé. Budapest könnyen megközelíthető tömegközlekedéssel és autóval egyaránt, mivel a Gödöllő-i hév (Szentjakab megálló) pár perc sétára található, illetve autóval az M3-as autópálya szintén gyorsan elérhető. A fűtés korszerű hőszivattyús berendezéssel van megoldva, illetve padlófűtéssel, és mivel H tarifás így mindezt költséghatékonyan a téli időszakban is.
Átadás várhatóan 2026 második felében lesz,így még könnyen átformálható a saját ízlésének megfelelően, ha időben lecsap erre a lehetőségre!

Egyedi igényekre szabott lakáshitelekkel állunk rendelkezésére. Bankfüggetlen hitelcentrumunk az országban elérhető összes bank és hitelintézet ajánlatát versenyezteti az Ön számára díjmentesen. Munkatársaink nagy szakmai tapasztalattal várják Önt az előre egyeztetett időpontban.

Bővebb információért és a megtekintéssel kapcsolatban hívjon bizalommal!

Lakás részletei

Ár: 95 500 000 Ft
Méret: 68 négyzetméter
Azonosító: 11588572
Emelet: Földszint
Építőanyag: Tégla
Ingatlan állapota: Kitűnő
Kilátás: kertre néző
Egész szobák: 4

Egyéb jellemzők

  • Erkély
  • Garázs
  • Lift
  • Kertkapcsolat
  • Tároló
  • Kocsibeálló

Így keressen budapesti ingatlant négy egyszerű lépésben. Csupán 2 perc, kötelezettségek nélkül!

Szűkítse a budapesti ingatlanok
listáját
Válassza ki a megfelelő
budapesti ingatlant
Írjon a hirdetőnek
Várjon a visszahívásra