Eladó lakás Miskolc 215 000 000 Ft

Leírás


Miskolc egyik legszebb, zöldövezeti részén, a Közdombon, a Százszorszép utcában 2027-es befejezéssel egy különleges hangulatú, új építésű otthont a Százszorszépház lakópark exkluzív, mindössze négy lakásos társasházában.

Az épület koncepciója a klasszikus sorházi kialakítást ötvözi majd a legmodernebb építészeti megoldásokkal, így a lakók egyszerre élvezhetik a társasházi forma előnyeit és a családi házak nyugalmát. A projekt azok számára készül, akik értékelik a tágas tereket, a privát szférát és a minőségi környezetet.

 

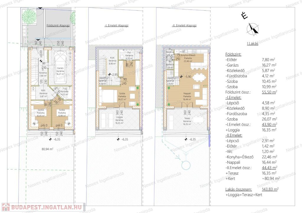
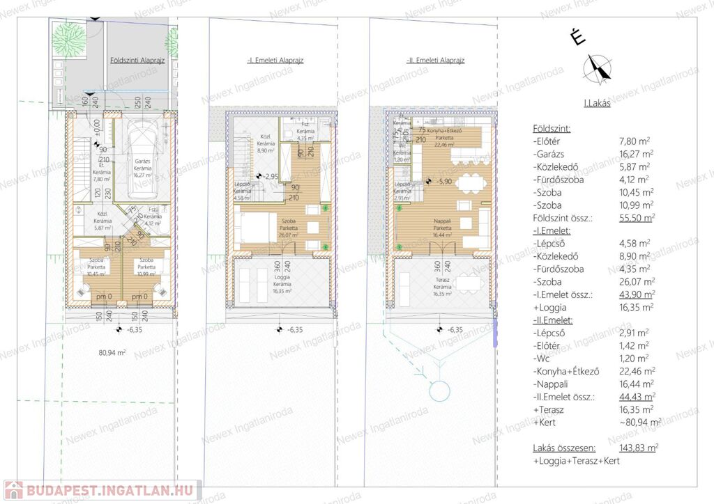
A 143,83 m²-es, háromszintes lakás átgondolt elrendezésének köszönhetően ideális választás családok számára. A kényelmes utcaszinti bejárattól és garázstól indulva a privát hálószobákon át jutunk el a világos, kertkapcsolatos nappalihoz, amely a mindennapi élet központi tere lehet.

A lakáshoz saját garázs és önálló kertkapcsolat tartozik, így a lakók valódi kertvárosi életérzést élvezhetnek, miközben a városi infrastruktúra is könnyen elérhető.

 

Főbb jellemzők:

- 143,83 m² nettó alapterület,

- nappali + 3 hálószoba,

- háromszintes kialakítás,

- saját kertkapcsolat,

- garázs tartozik a lakáshoz,

- modern, kis lakásszámú társasház (mindössze 4 lakás),

- csendes, zöldövezeti környezet.

 

A Százszorszép utca kiváló elhelyezkedése egyszerre biztosít nyugodt, kertvárosi környezetet és gyors kapcsolatot a város központjával. A közelben megtalálhatók az iskolák, bevásárlási lehetőségek és a tömegközlekedés is. 

Ez az ingatlan tökéletes választás azok számára, akik egy tágas, modern és értékálló otthont keresnek Miskolc egyik legjobb adottságú részén. Az építés 2026 tavasz

 

Irányár: 215 000 000 Ft

Lakás részletei

Ár: 215 000 000 Ft
Méret: 143 négyzetméter
Azonosító: 11604916
Irodai azonosító: 698900779
Emelet: Földszint
Építőanyag: Tégla
Ingatlan állapota: Kitűnő
Komfort fokozat: Luxus komfort
Egész szobák: 4

Egyéb jellemzők

  • Lift

Így keressen budapesti ingatlant négy egyszerű lépésben. Csupán 2 perc, kötelezettségek nélkül!

Szűkítse a budapesti ingatlanok
listáját
Válassza ki a megfelelő
budapesti ingatlant
Írjon a hirdetőnek
Várjon a visszahívásra