Eladó lakás Komárom 76 580 000 Ft

Leírás

ÚJ ÉPÍTÉSŰ LAKÁS KOMÁROMBAN!

-modern
-kulcsrakész
-energiatakarékos
-akadálymentesített

Komáromban a városközponthoz, buszpályaudvarhoz és vasútállomáshoz közel, a Laktanya köz 7. sz. alatt kerül kialakításra egy 24 lakásos társasház, mely két ütemben (12-12 lakással) készül el.

A négyszintes épületben található felvonó akadálymentesen is megközelíthető. A földszinten kettő, az első és második emeleten négy-négy, illetve a legfelső szinten 2 db penthouse lakás kerül kialakításra.

Minden lakáshoz tartozik egy önálló, földszinti tároló, valamint 1 db zárt udvarban található kocsibeálló.

Az épület teljes szerkezete vasbeton kéregelemes (Leier) technológiával készül. Az energetikai követelményeknek való megfelelést a megfelelő vastagságú hőszigetelés, korszerű nyílászárók és épületgépészeti rendszer biztosítja.



Az épület homlokzaton 20 cm EPS szigetelés készül. A lapostetőn minimum 22 cm vastag EPS hőszigetelés, a terasztetőn minimum 15 cm PIR hőszigetelés készül.

Az épületbe laminált parketta burkolat és mázas kerámia burkolat kerül beépítésre. Teraszokon fagyálló, csúszásmentes greslap burkolat készül. A lépcsőházakban és a közlekedési útvonalakon szintén csúszásmentes, greslap burkolat lesz. A tetőteraszok burkolata 3 cm vastag nyílthézagos fagyálló kő burkolat.

A nyílászárók 3 rétegű hőszigetelő üvegezéssel ellátottak. Ezen nyílászárók minimum „u” értéke 0,81 W/m2K. A nyílászárók fehér színben kerülnek kivitelezésre.

Az épületben a villamos mérés lakásonként főmérővel történik.

A laskásokban a vécék és a fürdőszobák szellőzésére gépi elszívás kerül beépítésre.

Az épület fűtését központilag levegő-víz hőszivattyú rendszer biztosítja a mennyezet hűtés-fűtés által, kiegészítő padlófűtéssel.

A főbejáratnál elhelyezett kaputelefon lakásonként biztosít csengetési lehetőséget, a mágneszárral ellátott külső főbejárati ajtó minden lakásból távműködtetéssel nyitható.

Tervezett átadás 2025 év vége.

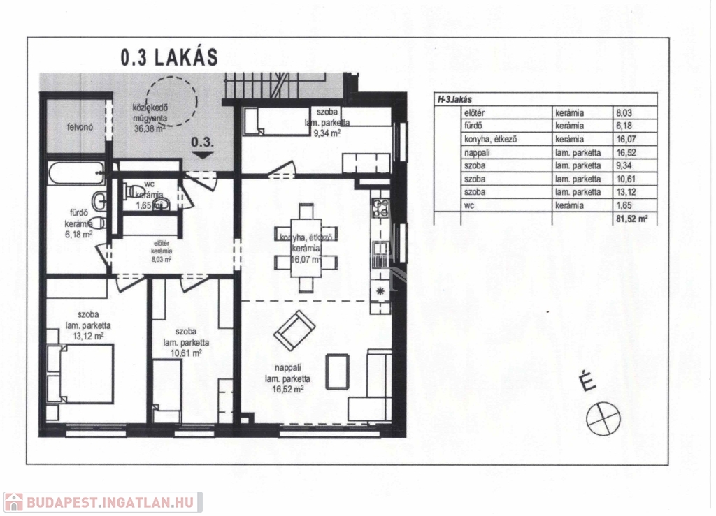
F.3. lakás
- nappali + 3 szoba
- 81,52 m2
- 76.580.000 Ft

Lakás részletei

Ár: 76 580 000 Ft
Méret: 81 négyzetméter
Azonosító: 11571462
Irodai azonosító: 388238
Cím: Laktanya köz
Emelet: Földszint
Építőanyag: Kérdezzen rá a hirdetőtől »
Fűtés jellege: Hőszivattyú
Ingatlan állapota: Kitűnő
Komfort fokozat: Összkomfort
Építési év: Új építésű
Tulajdonviszony: Saját
Kilátás: kertre néző
Egész szobák: 4

Egyéb jellemzők

  • Erkély
  • Garázs
  • Lift
  • Pince
  • Tároló

Térkép


Így keressen budapesti ingatlant négy egyszerű lépésben. Csupán 2 perc, kötelezettségek nélkül!

Szűkítse a budapesti ingatlanok
listáját
Válassza ki a megfelelő
budapesti ingatlant
Írjon a hirdetőnek
Várjon a visszahívásra