Eladó lakás Komárom 54 762 000 Ft

Leírás

ÚJ ÉPÍTÉSŰ, MODERN OTTHONOK KOMÁROM LÁTVÁNYOSAN FEJLŐDŐ, KEDVELT RÉSZÉN – ERKÉLLYEL, SAJÁT TÁROLÓVAL ÉS PARKOLÓVAL!

KULCSRAKÉSZ ÁTADÁS: 2025 ŐSZÉN

Ha minőségi otthont keresel, vagy biztos befektetésben gondolkodsz, ezt a lehetőséget nem érdemes kihagynod!

Miért válaszd ezt a projektet?
- Gazdaságos fenntartás – modern hőszivattyús fűtési és hűtési rendszer
- Korszerű technológia – minőségi építőanyagok és 3 rétegű üvegezésű nyílászárók
- Tökéletes elhelyezkedés – közel a Duna-parthoz, a Csillag erődhöz és a termálfürdőhöz
- Kiváló közlekedés – pár perc a városközpont

A társasházról:
- 3 emeletes, 15 lakásos modern, zárt épület
- A földszinten üzlethelyiség
- Minden lakáshoz erkély, saját tároló és parkoló tartozik

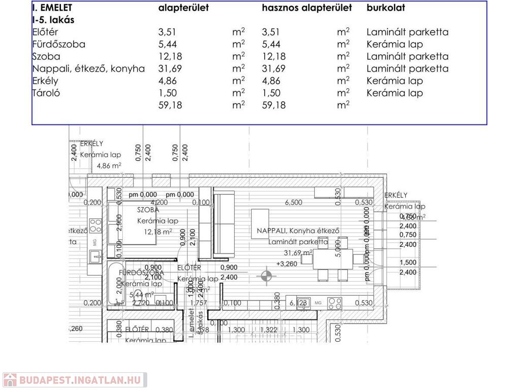
I. emelet, 5. lakás:
➡ Alapterület: 52,82 m² – 47.538.000 Ft
➡ Erkély: 4,86 m² – 4.374.000 Ft
➡ Tároló: 1,5 m² – 1.350.000 Ft
➡ Kültéri parkoló: 1.500.000 Ft
Bruttó összesen: 54.762.000 Ft

Kulcsrakész műszaki tartalom:
Szerkezet és falak:
- 38 cm égetett kerámia falazóelem
- Homlokzati szigetelés – DRYVIT rendszer CEMIX vakolattal
- Válaszfalak: 10 cm-es POROTHERM válaszfallap
- Lakáselválasztó fal: 20 cm-es SILKA hanggátló fal

Nyílászárók:
- Műanyag profilrendszerű ablakok és erkélyajtók – 3 rétegű üvegezéssel (REHAU)
- Árnyékolástechnika

Belső ajtók:
- Furatolt faforgácslap ajtók átfogótokkal, festett kivitelben

Felületképzés:
- Vakolt, glettelt falak, 2 rétegű diszperziós festéssel
- Fürdőszoba teljes fali csempézéssel

Gépészet:
- Lakásonként levegő-víz hőszivattyús rendszer – padlófűtés és fan-coilos hűtés
- Áramellátás: 1×32 A + H tarifa a hőszivattyúnak

Villamoshálózat:
- Kapcsolók és dugaljak: Schneider típusú szerelvények
- Lámpa előkészítés biztosított

Gyengeáramú szerelés:
- Kaputelefon rendszer
- TV és internet hálózat (PICK-UP Kft. szolgáltató)

Beépített szaniterek:
- Fürdőszoba: Alföldi fali WC, Como mosdó (60 cm) + szekrény, 170×75 cm fürdőkád, Kludi csaptelepek
- 1 db törölközőszárítós elektromos radiátor
- Konyhabútor opcionálisan rendelhető

Beépített burkolatok ára:

Fürdő + WC csempe: 5.500 Ft + ÁFA/m²
Járólap: 5.500 Ft + ÁFA/m²
Szobák és nappali laminált padló: 3.900 Ft + ÁFA/m²
Erkély: fagyálló kerámia


Finanszírozás és ügyintézés:
INGYENES hitelszűrés és tanácsadás – 18 bank ajánlatából választhatod ki a legjobbat!
CSOK Plusz, kamattámogatott hitelek és Babaváró hitel igényelhető
Teljes körű jogi képviselet

Ne dönts, amíg ezt az ingatlant nem láttad!
Érdeklődj most és foglald le álmaid otthonát! Nagy Edit 06 30 6 226 317

Lakás részletei

Ár: 54 762 000 Ft
Méret: 53 négyzetméter
Azonosító: 11491999
Irodai azonosító: 8957
Cím: Komárom
Emelet: 1. emelet
Építőanyag: Kérdezzen rá a hirdetőtől »
Fűtés jellege: Egyéb
Ingatlan állapota:
Építési év: Új építésű
Egész szobák: 2

Egyéb jellemzők

  • Erkély

Így keressen budapesti ingatlant négy egyszerű lépésben. Csupán 2 perc, kötelezettségek nélkül!

Szűkítse a budapesti ingatlanok
listáját
Válassza ki a megfelelő
budapesti ingatlant
Írjon a hirdetőnek
Várjon a visszahívásra