Eladó lakás Komárom 30 800 000 Ft

Leírás

ELADÓ ÚJÉPÍTÉSŰ LAKÁSOK KOMÁROMBAN!

A lakópark a közúti forgalom elől elzárt hatalmas zöld területen helyezkedik el ennek köszönhetően élhető környezetet biztosít az ott lakóknak!


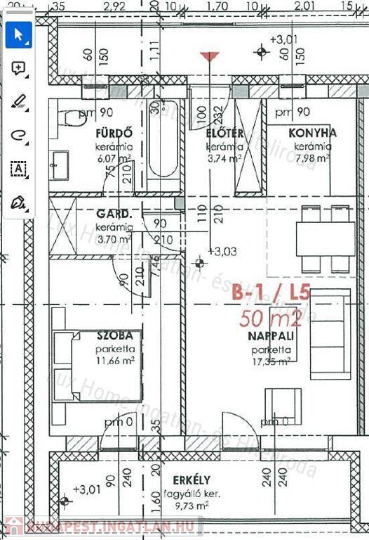
A Lux Ingatlaniroda Komárom kínálatából 182501133 számon eladó Komárom, téglalakás jellemzői:


Komáromban a Mártírok útján újonnan kialakított lakóparkban lakások bevezető áron leköthetőek.

A Gyermek Város Lakóparkban "A" "B" "C" épület típusok helyezkednek el. 

Épület típusonként a kínálatban található erkélyes, loggiás, tetőteraszos, és saját kerttel rendelkező lakás is.

A lakások mérete: 30 nm-től , 45 nm-ig.

SZERKEZETKÉSZ ÁLLAPOTBAN BEVEZETŐ ÁRON!!!: 700.000.-Ft/nm!!!

Nagy számban kerülnek kialakításra gépkocsi beálló helyek is, melyek opcionálisan megvásárolhatóak: 1.500.000.-Ft/db áron.


Amennyiben a Lux Ingatlaniroda által kínált hirdetés felkeltette az érdeklődésed, keress bizalommal! Kollégáim díjmentes és bankfüggetlen hitelügyintézéssel állnak rendelkezésedre.

Lux Ingatlan - Számolj velünk

Lakás részletei

Ár: 30 800 000 Ft
Méret: 44 négyzetméter
Azonosító: 11596434
Irodai azonosító: 182501134
Építőanyag: Tégla
Ingatlan állapota: Kitűnő
Egész szobák: 1

Így keressen budapesti ingatlant négy egyszerű lépésben. Csupán 2 perc, kötelezettségek nélkül!

Szűkítse a budapesti ingatlanok
listáját
Válassza ki a megfelelő
budapesti ingatlant
Írjon a hirdetőnek
Várjon a visszahívásra