Eladó lakás Komárom 169 301 068 Ft

Leírás

A White Square 17 lakásos lakóingatlan KOMÁRNO központjában található.

A liftes apartmanház 6 emeletből áll - földszinten 3 üzlethelyiség , 4 emeleten
16 lakás , a legfelső szinten egy összesen 211 nm alapterületű
penthouse lakás.

Az energiatakarékosság nagyon fontos szerepet játszott a tervezési folyamatban, és minden lakás hőszivattyús padlófűtéssel ellátott, amely lakásonként egyénileg mobiltelefonnal szabályozható. Alacsony rezsiköltség A0 energiahatékonyság.

A Lux Ingatlaniroda KOMÁRNO kínálatából 182500850 számon eladó KOMÁRNO lakások jellemzői:

ALAPFELSZERELTSÉG:

Padlófűtés, mobiltelefonon keresztül szabályozható, minőségi hőszivattyú - minden lakáshoz külön

Saját vízmérő minden lakáshoz rádiós modullal. Előkészítés az egyedi melegvíz-ellátáshoz minden lakáshoz saját hőszivattyú

Az épület energetikai hatékonysága AO osztályú

Intelligens SMART rendszer

Használt levegő elvezetése helyiségekből és hővisszanyerős helyi szellőztető egységek segítségével történő szellőztetés

Anhidrid öntött padlók kiváló hőtartó tulajdonságokkal

Légakusztikus, biztonsági, tűzálló SDK falak az apartmanok között

SDK mennyezetek

Lakásszeparáló falak hangszigeteléssel, dupla SDK burkolattal

Előkészítés klímaberendezéshez

Hőszigetelt háromrétegű ablakok

Előkészítés fali WC-hez

Tűzálló lakásajtók

Kamerás bejárati rendszer, chip vezérléssel az összes lakás bejáratához

Felszerelt kapcsolók és konnektorok

Fehérre festett, higiénikus bevonattal

Optika (tartós vonal, TV, internet) közvetlenül a lakásban.

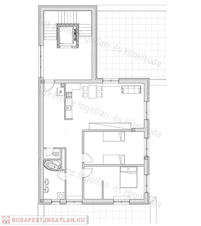
A 95 nm - es  penthouse lakás a legfelső szinten kerül kialakításra ,melyben - 21,43 nm bejárat , folyosó

                                                                                                                          - 1,39 nm wc

                                                                                                                          - 6,91 nm fürdőszoba

                                                                                                                          - 17,05 nm hálószoba gardróbbal

                                                                                                                          - 17,22 nm szoba

                                                                                                                          - 26,33 nm nappali konyhával

                                                                                                                          - 121,39 nm terasz

lett tervezve. A szobák mindegyike parkettával , a többi helyiség járólappal burkolt.


További elérhető lakástípusok:

2 szobás 43,7 m2 3,1 m2 100 876 €

3 szobás 72,75 m2 6,1 m2 169 763 €

3 szobás 71,32 m2 4,73 m2 163 988 €

2 szobás 50,35 m2 6,35 m2 121 642 €

3 szobás 95,23 m2 121,39 m2 443 359 €

Az  építkezés elkezdődött. Az apartman várható átadási ideje : 2024. október

A foglalóhoz 20 % önerő szükséges.


Amennyiben a Lux Ingatlaniroda által kínált hirdetés felkeltette az érdeklődésed, keress bizalommal! Kollégáim díjmentes és bankfüggetlen hitelügyintézéssel állnak rendelkezésedre.

Lux Ingatlan - Számolj velünk

Lakás részletei

Ár: 169 301 068 Ft
Méret: 95 négyzetméter
Azonosító: 11596430
Irodai azonosító: 182500853
Építőanyag: Tégla
Ingatlan állapota: Kitűnő
Egész szobák: 3

Így keressen budapesti ingatlant négy egyszerű lépésben. Csupán 2 perc, kötelezettségek nélkül!

Szűkítse a budapesti ingatlanok
listáját
Válassza ki a megfelelő
budapesti ingatlant
Írjon a hirdetőnek
Várjon a visszahívásra