Eladó lakás Kecskemét 44 900 000 Ft

Leírás

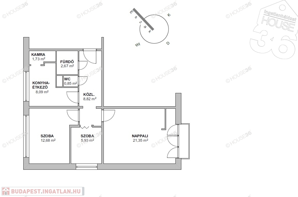
Kecskemét Széchenyivárosban, 61 m2-es, 3 szobás, erkélyes lakás, liftes házban eladó!

Jellemzők:

szigetelt tömb
3 külön nyíló szoba
lift
cserélt műanyagnyílászárók
távfűtés egyedi mérőkkel
kitűnő infrastruktúra
azonnal birtokba vehető


Figyelem az adatlap megbízóinktól kapott adatok
alapján készült,pontosságáért felelősséget
nem tudunk vállalni!

A fenti adatok tájékoztató jellegűek, felelősséget érte nem vállalok.

Referencia szám: 3620926

Lakás részletei

Ár: 44 900 000 Ft
Méret: 61 négyzetméter
Azonosító: 11586079
Irodai azonosító: 3620926-5104212
Emelet: 5. emelet
Építőanyag: Panel
Fűtés jellege: Központi (egyedi mérővel)
Ingatlan állapota: Átlagos
Építési év: 21-50 éves
Egész szobák: 3

Egyéb jellemzők

  • Erkély
  • Lift

Térkép


Így keressen budapesti ingatlant négy egyszerű lépésben. Csupán 2 perc, kötelezettségek nélkül!

Szűkítse a budapesti ingatlanok
listáját
Válassza ki a megfelelő
budapesti ingatlant
Írjon a hirdetőnek
Várjon a visszahívásra