Eladó lakás Kecskemét 110 000 000 Ft

Leírás

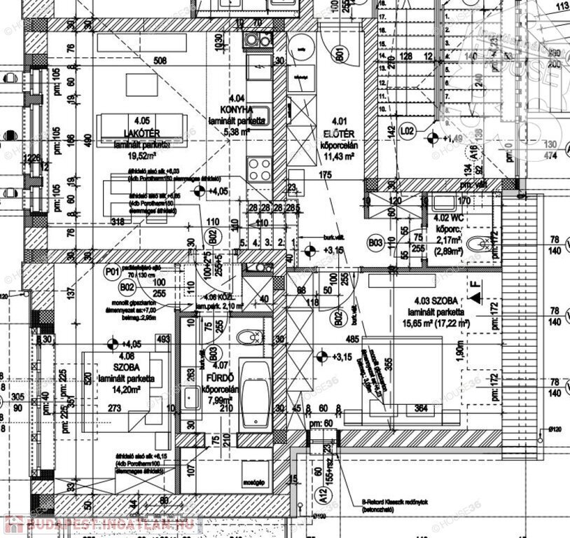
Kecskemét belvárosi, 78 m2-es, nappali + 2 szobás, első emeleti, új luxus lakás eladó!

Jellemzők:


78 m2
nappali + 2 szoba
2026-os építés
Hőszivattyús fűtés ( H tarifával )
prémium minőségű fa nyílászárók, szúnyoghálóval
elektromos redőny
prémium burkolatok
prémium világító testek
prémium konyhabútor, prémium beépített gépekkel
zártudvari autóbeálló, elektromos autó töltővel, kötelezően megvásárolandó további 5 millió forint
azonnal költözhető


​Figyelem az adatlap megbízóinktól kapott adatok
alapján készült,pontosságáért felelősséget
nem tudunk vállalni!
Az iroda legfrissebb, aktuális kínálatát a HOUSE36 saját weboldalán találja!

Lakás részletei

Ár: 110 000 000 Ft
Méret: 78 négyzetméter
Azonosító: 11609300
Irodai azonosító: 3621328-5172223
Emelet: 2. emelet
Építőanyag: Tégla
Fűtés jellege: Hőszivattyú
Ingatlan állapota: Kitűnő
Egész szobák: 3

Térkép


Így keressen budapesti ingatlant négy egyszerű lépésben. Csupán 2 perc, kötelezettségek nélkül!

Szűkítse a budapesti ingatlanok
listáját
Válassza ki a megfelelő
budapesti ingatlant
Írjon a hirdetőnek
Várjon a visszahívásra