Eladó lakás Hódmezővásárhely 37 000 000 Ft

Leírás

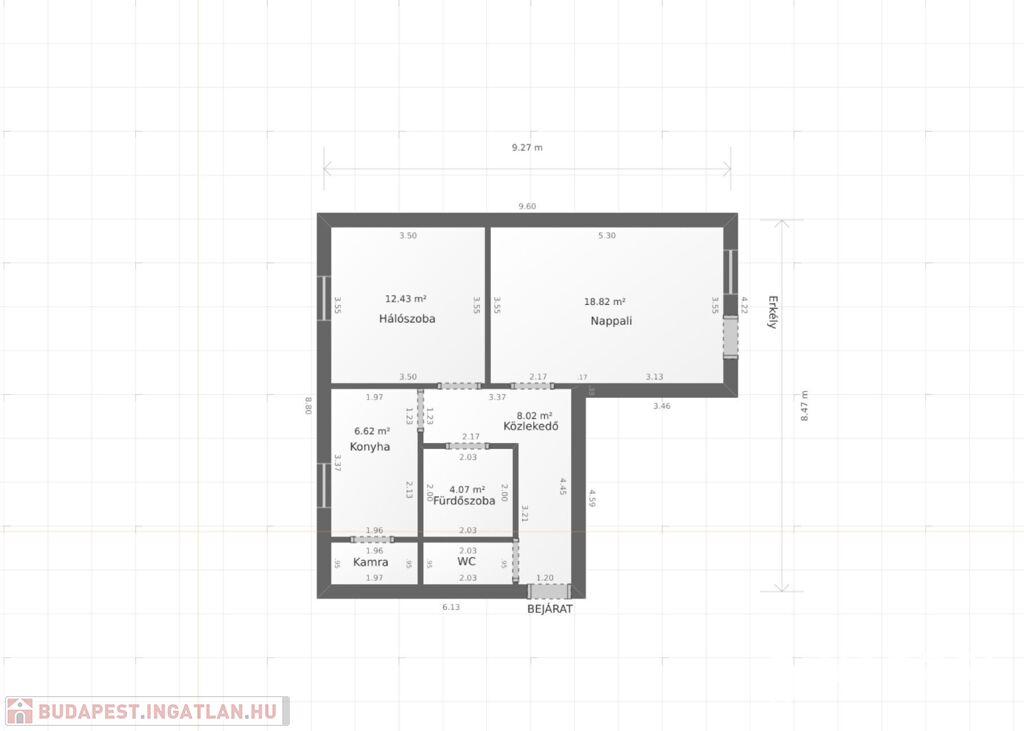
A kertvárosban kínálom eladásra ezt az első emeleti téglalakást. Szép állapotú, nem felújított, hanem folyamatosan karban tartott. Kiváló, csendes, zöld övezetben helyezkedik el. A közelben minden megtalálható a napi életvitelhez: iskola, óvoda, boltok, busz megálló...stb.

A lakáshoz egy 17 négyzetméteres garázs is tartozik, mely 8M Ft, így egyben 45M Ft.
Csak egyben eladó!

További kérdéseivel keressen bizalommal!

Horváth Zsolt
+36 (30) 463 1474
(További képekért és információkért kérem hívjon!)

Lakás részletei

Ár: 37 000 000 Ft
Méret: 56 négyzetméter
Azonosító: 11578732
Irodai azonosító: 482271
Erkély mérete: 4.00 négyzetméter
Építőanyag: Tégla
Fűtés jellege: Konvektoros
Ingatlan állapota: Átlagos
Komfort fokozat: Összkomfort
Egész szobák: 2
Nappalik: 1

Egyéb jellemzők

  • Erkély
  • Garázs
  • Klíma
  • Lift
  • Pince
  • Kertkapcsolat

Így keressen budapesti ingatlant négy egyszerű lépésben. Csupán 2 perc, kötelezettségek nélkül!

Szűkítse a budapesti ingatlanok
listáját
Válassza ki a megfelelő
budapesti ingatlant
Írjon a hirdetőnek
Várjon a visszahívásra