Eladó lakás Hévíz 124 300 000 Ft

Leírás

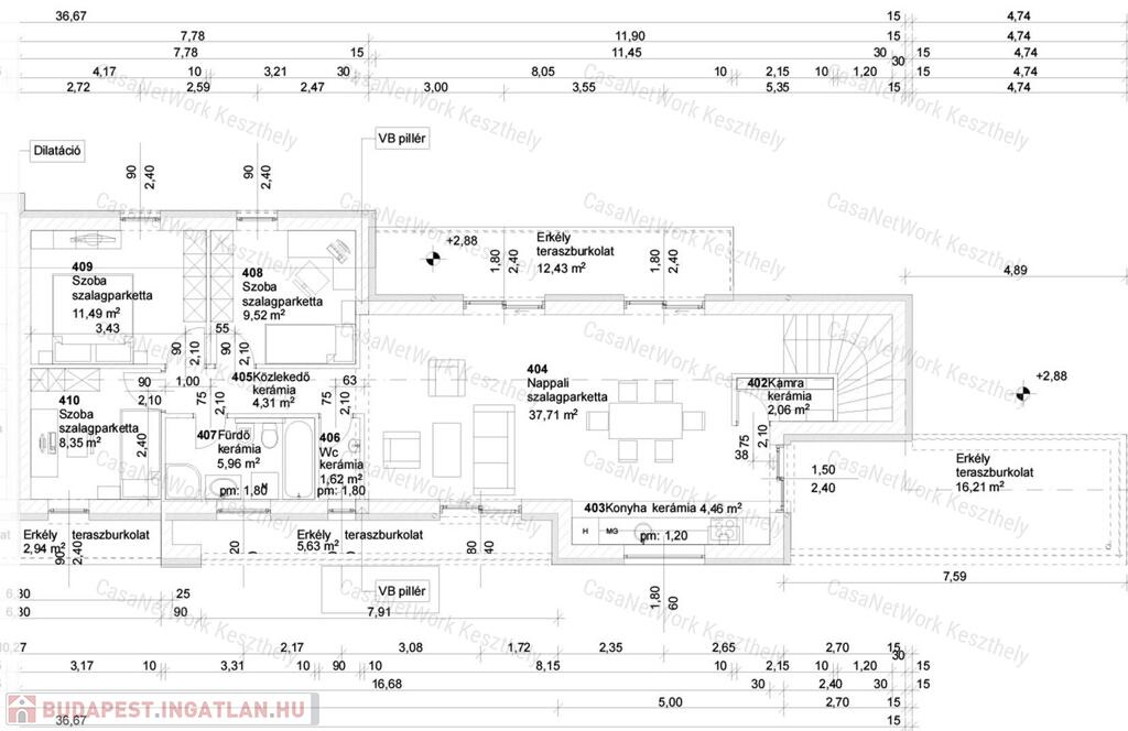
Eladó Hévízen egy 113 m2 hasznos alapterületű első emeleti lakás, amely egy most épülő, lapostetős, hőszivattyúval ellátott, négylakásos társasházban található. Várható átadás 2022 év vége.Az ingatlan Hévíz egregyi részén helyezkedik el, gyönyörű panorámával a Keszthelyi-fennsíkra, Hévízi-tótól 1900 m-re.A társasházhoz tartozó közös használatú telek összterülete 665 m2. Az épülethez, telken belül összesen 6 parkolóhely lesz kialakítva.A modern kialakítású lakás alapterülete 95 m2 (amerikai konyhás nappali, 3 hálószoba, fürdőszoba, wc, közlekedő), amelyhez 4 db  összesen 37 m2 terasz tartozik. Az ár tartalmazza a telken belüli udvari beállót és a lépcsőházban lévő tárolót is.A tervek szerint a szobák és a nappali burkolata laminált szalagparketta lesz, a többi helyiség kerámialapos, a vizes blokkok pedig csempeburkolattal kerülnek kivitelezésre, mely elképzeléseket a jelenlegi szakaszban a leendő tulajdonos még igénye szerint módosíthatja.Az épület fűtése, használati melegvíz-ellátása, valamint hűtése energiahatékonysági szempontok miatt levegős hőszivattyúval megoldott. A hőszivattyúban felhasznált minden egyes kilowatt villamos energia 3-4 kilowatt megújuló, a levegőből kinyert hőenergiát jelent – ez pedig 300-400%-os hatékonyságjavulásnak felel meg. Ehhez még hozzájárul az ingatlanra tett 15-cm-es hőszigetelés és a minőségi nyílászárók.A komplett közműhálózat kiépített: elektromos áram, víz, szennyvíz.A lakás állandó lakhatásra és befektetésként is kiválóan alkalmas a város turisztikai vonzereje és hírneve miatt.Részletesebb felvilágosításért, vagy a személyes megtekintésért hívjon a megadott telefonszámon, vagy forduljon a KESZTHELYI irodánkhoz, Keszthely, Fejér Gy. 2. 
Finanszírozási elképzeléséhez partnerek vagyunk! Díjmentes, bankfüggetlen, személyre szabott ajánlattal várjuk megkeresését!

Lakás részletei

Ár: 124 300 000 Ft
Méret: 113 négyzetméter
Azonosító: 11030703
Irodai azonosító: 183102828
Emelet: 1. emelet
Építőanyag: Tégla
Ingatlan állapota: Szerkezetkész
Egész szobák: 4

Így keressen budapesti ingatlant négy egyszerű lépésben. Csupán 2 perc, kötelezettségek nélkül!

Szűkítse a budapesti ingatlanok
listáját
Válassza ki a megfelelő
budapesti ingatlant
Írjon a hirdetőnek
Várjon a visszahívásra