Eladó lakás Hatvan 65 990 000 Ft

Leírás

ÚJ ÉPÍTÉSŰ LAKÁS HATVAN SZÍVÉBEN!


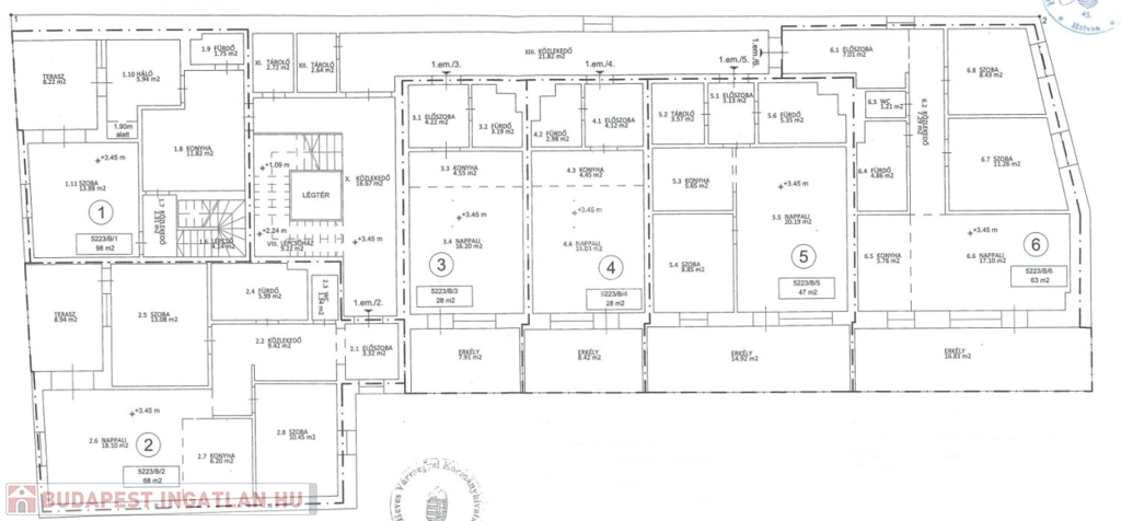
Megvételre kínálok Hatvan központi városrészén, újépítésű, 12 lakásos, 2 emeletes társasház első emeletén egy nettó 68 nm, bruttó 77 nm-es igényes kivitelezésű lakást, melyhez 9 nm erkély tartozik..


Az alaprajzon L1.2 szám alatt található, a teljes átadás 2025-ben történt meg!

AZONNAL KÖLTÖZHETŐ!

Használatba vételi engedéllyel, Társasházi alapító okirattal és érvényes földhivatali bejegyzéssel rendelkezik, energetikai besorolása A+.

Az utolsó lakás, a többi értékesítésre került. A társasházban Közjegyzői iroda működik, mely bármilyen ügyben várja az ügyfeleket.

Az ingatlan műszaki leírása:
- Alapozás: Vasbeton lemez alap, a fő falak alatt megvastagítással. Vasbetonpilléres alsó erősítéssel. C30/37-s betonnal.

- Szigetelés: vízszintes talajpára elleni szigetelés GV35-ös bitumenes lemezzel. Az épület külső falai utólagos hőszigetelést kapnak, 15 cm vastag Polisztirol keményhab hőszigetelő lapra üvegháló kapart nemes vakolat kerül. Tartófalak: A külső teherhordó falak Porotherm
Rapid Dryfix, N+F falazó elemek, 30 cm vastagságban.

- Födém: Monolit vasbeton födém, építészeti statikai terv alapján.

- Tetőszerkezet: Szeglemezes tetőszerkezet, elsőosztályú fenyőből. Az eresz látható szaruzattal kb. 50 cm túllógással felűről lambéria burkolattal. A felhasznált faanyag gomba-mentesítővel kezelve. A fedélszék a koszorúhoz csavarozott mérnöki kapcsoló elemekkel van rögzítve.

- Tetőhéjalás: A tető téglány színű Bramac Protector cserépfedést kap. A tetőlécezés alá hálóerősített párazáró alátétfólia kerül.

- Bádogozás: Bádogos szerkezetek horganyzott lemezből készülnek, csapadékvíz összegyűjtése és levezetése függőeresz csatornával van kivitelezve.

- Válaszfal: A válaszfalak 10 cm vastag Ytongból készülnek.

- Belső falazat borítása: Két oldali mészvakolattal. A nyílások körül és a pozitív sarkokon él védők felhelyezése. A belső falak glettelve, 2 rétegben, fehér színű festéssel.

- Lépcsőházi lépcső: A lépcső gipszbetonból készült, csúszásmentes fagyálló kerámia burkolattal ellátva.

- Bejárati ajtó: Fehér színű műanyag esztétikus megjelenésű, a tűzvédelmi előírásoknak és a MABISZ elvárásoknak megfelelő biztonsági ajtó, felülvilágító ablakkal. Ablak könyöklők: Kívül-belül műanyag párkányok fehér színben.

- Nyílászárók: Az ablakok műanyag szerkezetűek, (bukó-nyíló, illetve fix kialakítással) 3 rétegű üveggel, fehér színben.
Ablakok körül 2-3 cm XPS hőszigetelő fogadószerkezet beépítésével. A belső ajtók MDF típusúak, kilincsel együtt.

- Épület homlokzata: Tört fehér színű kapart nemes vakolat, bézs színű díszítőelemekkel.

- Vízellátás: A telekhatárnál elhelyezett vízmérő aknában történik. A külső nyomóvezeték anyaga KPE műanyag nyomócső, a vízmérőtől az épületig földbe fektetve van vezetve. A melegvíz ellátás hőszivattyús rendszerrel biztosított.

- Fűtés: A lakásokban padlófűtés kerül kialakításra. A fürdőszobákban 1 db törölközőszárító radiátor került telepítésre. A fűtés vezetékek az aljzatban szerelt, védőcsőben, vagy szigetelő csőhéjban vezetett oxigéndiffúzió mentes 5 rétegű betétes csövek szerelve. A nappali helységben 1 db szoba termosztát kerül elhelyezésre.


Hitel? Támogatás? CSOK ügyintézés?
Irodánk ingyenes hitelügyintéző szolgáltatásával JOBBAN JÁR, mintha közvetlenül a bankban igényelne!

- egyedi, bankfiókban nem elérhető kamat és díjkedvezmények
- hitelképesség vizsgálat
- idő, energia és pénz megtakarítás
- teljes hivatali ügyintézés

Amennyiben hirdetésem felkeltette érdeklődését, várom hívását a normál munkaidő után vagy akár hétvégén is! S.S.

Lakás részletei

Ár: 65 990 000 Ft
Méret: 68 négyzetméter
Azonosító: 11555900
Irodai azonosító: 385904
Cím: Központi, mégis csendes helyen
Emelet: 1. emelet
Építőanyag: Tégla
Fűtés jellege: Hőszivattyú
Ingatlan állapota: Kitűnő
Komfort fokozat: Összkomfort
Építési év: Új építésű
Tulajdonviszony: Saját
Kilátás: utcai
Egész szobák: 2

Egyéb jellemzők

  • Erkély
  • Garázs
  • Lift
  • Pince
  • Tároló

Térkép


Így keressen budapesti ingatlant négy egyszerű lépésben. Csupán 2 perc, kötelezettségek nélkül!

Szűkítse a budapesti ingatlanok
listáját
Válassza ki a megfelelő
budapesti ingatlant
Írjon a hirdetőnek
Várjon a visszahívásra