Eladó lakás Hajdúszoboszló 99 490 000 Ft

Leírás


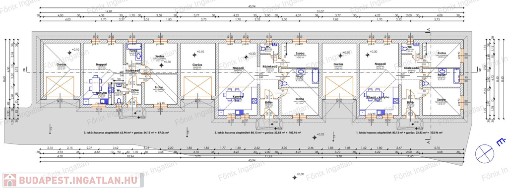
Hajdúszoboszló központjában, ugyanakkor nyugodt, csendes környezetben kínálunk eladásra egy új építésű, három lakásos sorházban található lakóingatlant.

102,96 m² hasznos alapterület, ebből 80,13 m² lakótér – amerikai konyhás nappali, 2 hálószoba, 2 WC/fürdő, garázs, saját kert.

 

- Ytong tégla, betoncserepes tető

- Háromrétegű hővisszaverős nyílászárók

- Hőszivattyús fűtés, padlófűtés, hűtő-fűtő klíma

- Prémium kivitelezés, kiváló elrendezés

- Saját kert és garázs

- Rugalmas fizetési feltételek

 

Kiváló ár-érték arány modern technológiával – ne maradjon le róla!

 

Keress bizalommal!

Lakás részletei

Ár: 99 490 000 Ft
Méret: 103 négyzetméter
Azonosító: 11540580
Irodai azonosító: 705100286
Építőanyag: Tégla
Ingatlan állapota: Kitűnő
Komfort fokozat: Összkomfort
Építési év: Új építésű
Egész szobák: 3

Egyéb jellemzők

  • Lift

Így keressen budapesti ingatlant négy egyszerű lépésben. Csupán 2 perc, kötelezettségek nélkül!

Szűkítse a budapesti ingatlanok
listáját
Válassza ki a megfelelő
budapesti ingatlant
Írjon a hirdetőnek
Várjon a visszahívásra