Eladó lakás Győr 95 654 250 Ft

Leírás

Ez a tetőteraszos lakás új szintre emeli az otthon fogalmát

A Szitásdomb II. lakóparkban kínálunk megvételre egy kivételes adottságú, prémium penthouse lakást 21,9 m²-es panorámás tetőterasszal, azok számára, akik nem hajlandók kompromisszumokra.

Győr belvárosától mindössze 10 percre, kertvárosi környezetben, mégis kiváló közlekedéssel – az M1 autópálya elkerülő és az AUDI közvetlen közelében – született meg ez a modern, elegáns lakópark, amely a nyugalmat és a városi kényelmet tökéletes egyensúlyba helyezi.

A terület közigazgatásilag **Vámosszabadi**hoz tartozik, ami tovább erősíti a környék exkluzív, kisvárosias karakterét.

Penthouse, amely új szintre emeli az otthon fogalmát

A 92,46 m²-es, déli fekvésű lakás minden részletében a tágasság és az elegancia érzetét kelti.
A tágas nappali–konyha–étkező tér természetes fénnyel telik meg egész nap, míg a 21,9 m²-es tetőterasz privát oázisként szolgál – reggeli kávéhoz, esti borozáshoz, vendégfogadáshoz.

Három külön nyíló hálószoba, kifinomult belső arányok, zavartalan intimitás – tökéletes választás modern családok vagy felsővezetők számára.

PRÉMIUM MŰSZAKI TARTALOM – látható és érezhető minőség
- A+ energetikai besorolás
- 30 cm vastag hanggátló lakáselválasztó falak
- 20 cm homlokzati hőszigetelés
- INTERNORM háromrétegű nyílászárók, antracit külső megjelenéssel
- Központi hőszivattyús rendszer
- Padlófűtés és mennyezethűtés – látható klímaberendezések nélkül
- Elektromos alumínium redőny-előkészítés
- Exkluzív üvegkorlátos teraszok
- Gondosan megválasztott prémium anyaghasználat

A kivitelezés mögött nagy múltú, megbízható fejlesztő áll – ez az a minőség, amely évek múltán is értéket képvisel.

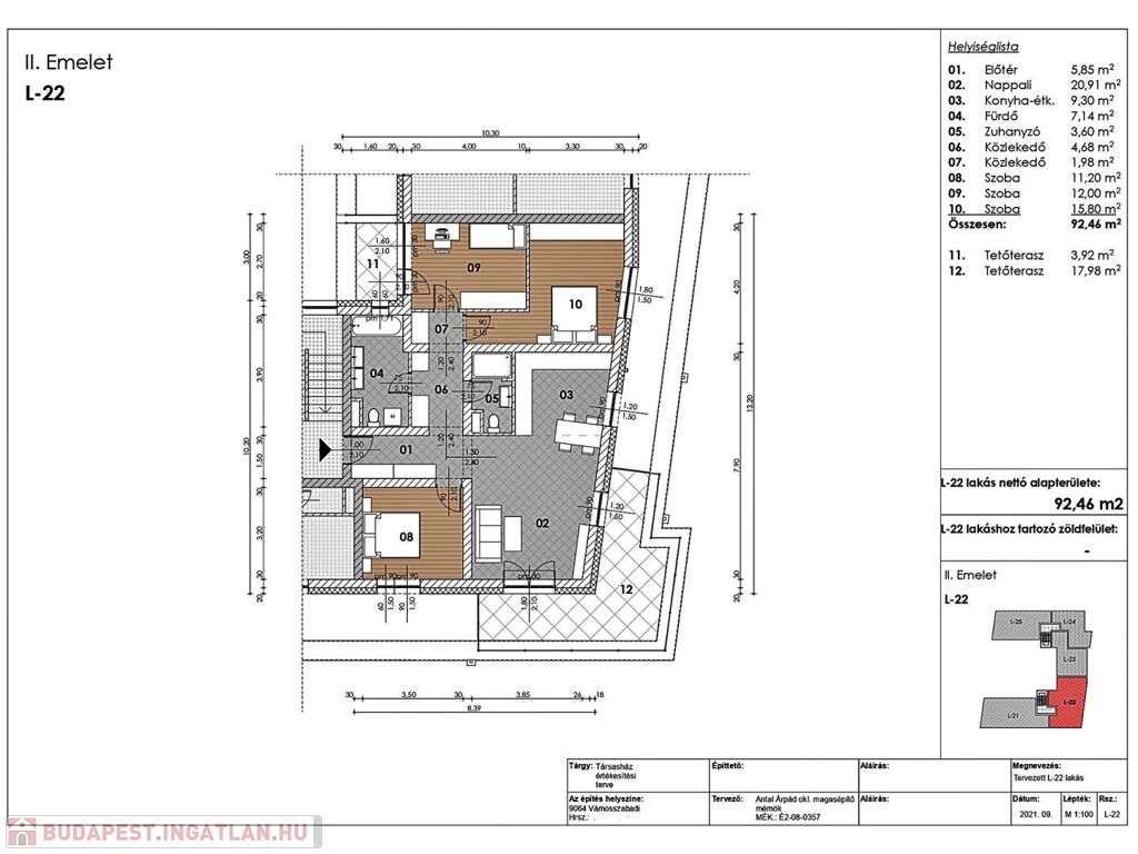
A 92,46 m2-es, 2. emeleti (L22), DK fekvésű lakás HELYISÉGEI:
Előtér 5,85 m2
Nappali 20,91 m2
Konyha-étkező. 9,3 m2
Zuhanyzó-WC 3,6 m2
Fürdő 7,14 m2
Közlekedő 4.68 m2
Közlekedő 1,98 m2
Szoba 15,8 m2
Szoba 11,2 m2
Szoba 12 m2
TETŐTERASZ 3,92 m2
TETŐTERASZ 17,98 m2

Az ár emelt szintű fűtéskész állapotra vonatkozik és tartalmazza az 5% Áfát, valamint a telekhányadot.
Igény szerint kulcsrakész befejezés egyedi megállapodás alapján elérhető.

A lakáshoz 2 db saját gépkocsibeálló tartozik (kötelező), mely biztosítja a mindennapok zavartalan komfortját. 1.000.000 Ft + (27% áfa). A lakáshoz tartozó parkolók száma: P42-P43

Várható átadás: 2026. február

További költségek:
- ügyvédi díj: lakás vételárnak 0,8%-a
- egyszeri 150.000 Ft, az albetétesítéshez, földhivatali eljáráshoz

Amennyiben hitelre van szüksége ingyenes tanácsadással és teljes körű ügyintézéssel állunk rendelkezésére. Minden jelenleg hatályos támogatás igénybe vehető!

A társasház további elérhető lakásai:
L10 – 1. emelet, 61,69 m2 + 4,2 m2 erkély bruttó 59.005.750 Ft
L11 – 1. emelet, 62,45 m2 + 13,91 m2 erkély bruttó 64.199.625 Ft
L16 – 1. emelet, 65,49 m2 + 4,2 m2 erkély bruttó 62.520.750 Ft
L20 – 1. emelet, 68,41 m2 + 6 m2 erkély bruttó 66.054.250 Ft
L21 – 2. emelet, 98,71 m2 + 34,33 m2 erkély bruttó 107.184.375 Ft
L22 – 2. emelet, 92,46 m2 + 22 m2 erkély bruttó 95.654.250 Ft

A lakóparkban kiépítésre kerül: játszótér, óvoda, bölcsőde, orvosi rendelő, szolgáltatók és számos üzlet is.
A csendes kisvárosi környezet, a város és az Ipari Park közelsége, könnyű megközelíthetősége miatt kitűnő választás akár saját lakásnak, akár befektetésnek is.

Engedje meg, hogy bemutassuk Önnek ezt az egyedülálló lehetőséget..
Ez az otthon személyesen győz meg igazán

Lakás részletei

Ár: 95 654 250 Ft
Méret: 92 négyzetméter
Azonosító: 11596948
Irodai azonosító: 124657
Cím: Győr
Emelet: 2. emelet
Építőanyag: Kérdezzen rá a hirdetőtől »
Fűtés jellege: Cirkó
Ingatlan állapota: Átlagos
Építési év: Új építésű
Egész szobák: 4

Egyéb jellemzők

  • Erkély

Így keressen budapesti ingatlant négy egyszerű lépésben. Csupán 2 perc, kötelezettségek nélkül!

Szűkítse a budapesti ingatlanok
listáját
Válassza ki a megfelelő
budapesti ingatlant
Írjon a hirdetőnek
Várjon a visszahívásra