Eladó lakás Győr 90 667 500 Ft

Leírás

Győrben, a Szitásdomb lakóparkban keresi új tulajdonosát ez a rendkívül igényesen kivitelezett nappali+2szobás, erkélyes lakás.
Igen, ez a ház Győr közigagatási területén helyezkedik el, nem Vámosszabadi!

Az ingatlan egy 2023-ban épült 23 lakásos társasház földszinti, 77,44nm-es lakása, melyhez egy, ~10 nm-es erkély kapcsolódik.
Az épületet magas színvonalú kivitelezés, modern megjelenés jellemzi. A tervezésnél fontos cél volt, hogy a közös közlekedő terek világos, jól átszellőztetett és barátságos lakókörnyezetet biztosítsanak. A tájolásnak köszönhetően a világos terek a lakásra is igazak, nagyon hangulatos otthon varázsolható belőle.
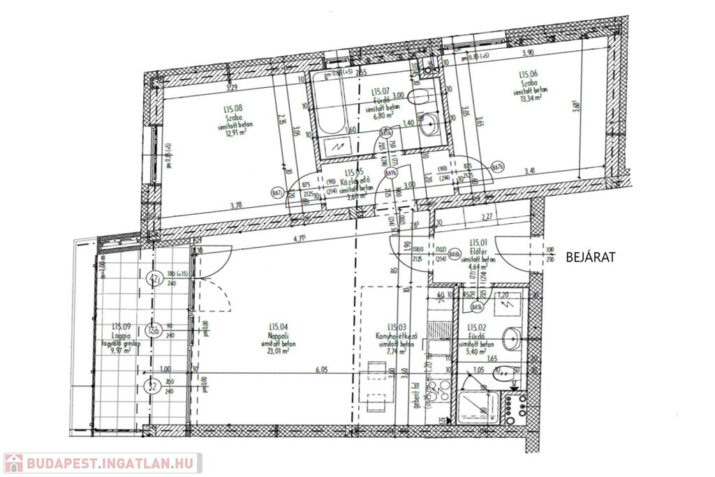
A lakás pontos elrendezése, a képek között szereplő alaprajzon látható.

Főbb műszaki adatok:
-Főfalai 30cm-es téglából épültek, 15cm-es homlokzati hőszigeteléssel kiegészítve.
-A nyílászárók műanyagok, 3 rétegű hang-és hőszigetelt üvegezéssel, redőny előkészítéssel.
-A fűtésről házközponti gázkazán gondoskodik, padlófűtéssel ellátva.

A pinceszinten mélygarázs beállók és tárolók külön vásárolhatók.
Az adásvétel ügyvédi díját és a közmű hozzájárulás költségét a vételár már tartalmazza!

Ügyfeleimnek az adásvétel során teljeskörű lebonyolítást vállalok, igény esetén díjmentes, bankfüggetlen hiteltanácsadással és ügyintézéssel segítem őket.
Már csak 4 eladó lakás van a házban, várom hívását!
(További kínálatunkat keresse a VING hivatalos weboldalán.)

Lakás részletei

Ár: 90 667 500 Ft
Méret: 77 négyzetméter
Azonosító: 11429606
Irodai azonosító: 492140
Erkély mérete: 10.00 négyzetméter
Építőanyag: Tégla
Fűtés jellege: Házközponti (egyedi mérővel)
Ingatlan állapota: Szerkezetkész
Egész szobák: 3
Nappalik: 1

Egyéb jellemzők

  • Erkély
  • Garázs
  • Klíma
  • Lift
  • Pince
  • Kertkapcsolat

Így keressen budapesti ingatlant négy egyszerű lépésben. Csupán 2 perc, kötelezettségek nélkül!

Szűkítse a budapesti ingatlanok
listáját
Válassza ki a megfelelő
budapesti ingatlant
Írjon a hirdetőnek
Várjon a visszahívásra