Eladó lakás Győr 89 900 000 Ft

Leírás


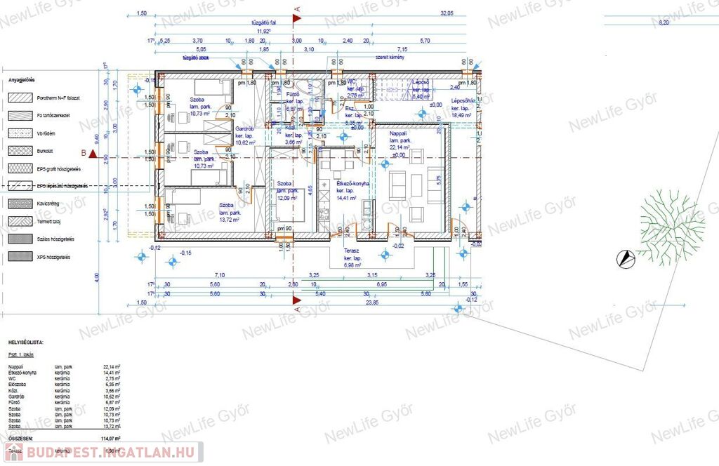
Győr-Moson-Sopron vármegye, Győr Szabadhegy eladó újépítésű 5 szobás lakás

 

Szabadhegyen jelenleg is épülő 3 lakásos társasház földszinti lakása eladó.

A lakás 114 m2.

Egy saját udvari parkolót is szükséges megvásárolni, melynek ára + 4MFt+Áfa.

A társasház 746 m2-es telekre épült. Földszinten helyezkedik el ez a lakás, az emeleten pedig másik kettő.  

 

Elosztása: amerikai konyhás nappali étkezővel, négy hálószoba, fürdőszoba káddal, WC-vel és egy külön WC, terasz.

A készültségi szint figyelembevételével még módosításokra van lehetőség.

Fűtése egyedi kondenzációs gázkazán padlófűtéssel a teljes lakásban.

Légkondicionáló előkészítéssel fűtéskészen eladó, mely várhatóan év végén kerül átadásra.

Természetesen kulcsrakész befejezésre is van lehetőség.

 

A társasházban eladó még:

Emelet: 87 m2-es lakás+13,4 m2 erkély: 72.250.000 Ft

Emelet: 84 m2-es lakás+4,41 m2 erkély: 75.650.000 Ft

Ne maradjon le róla!

 

A jelen hirdetésben rögzített, az ingatlannal kapcsolatos adatok, információk a megbízó tájékoztatása alapján kerültek meghatározásra.

 

Irodánkban az alábbiakkal tudjuk segíteni a gyors és megbízható ügyintézést:

-bankfüggetlen hitelügyintézés, CSOK Plusz

-energetikai tanúsítvány

-értékbecslés

-ügyvédi szerződések, jogi tanácsadás

-építész, tervezés, kivitelezés, felújítás, villanyszerelés

Lakás részletei

Ár: 89 900 000 Ft
Méret: 114 négyzetméter
Azonosító: 11448915
Irodai azonosító: 718800015
Emelet: Földszint
Építőanyag: Tégla
Fűtés jellege: Cirkó
Ingatlan állapota: Kitűnő
Komfort fokozat: Dupla komfort
Építési év: Új építésű
Egész szobák: 5

Egyéb jellemzők

  • Lift

Így keressen budapesti ingatlant négy egyszerű lépésben. Csupán 2 perc, kötelezettségek nélkül!

Szűkítse a budapesti ingatlanok
listáját
Válassza ki a megfelelő
budapesti ingatlant
Írjon a hirdetőnek
Várjon a visszahívásra