Eladó lakás Győr 84 990 000 Ft

Leírás

Azonnal költözhető, kulcsrakész lakás eladó!
Marcalváros II-n megépült társasházban ajánlom figyelmébe az utolsó szabad lakások egyikét.
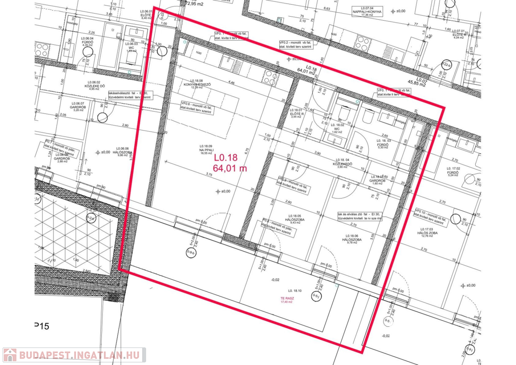
Elrendezése szerint nappali-konyha-étkező, 2db hálószoba, fürdőszoba, wc, előszoba kialakítású.
A lakáshoz a nappaliból és a hálószobákból is nyíló kertkapcsolat és burkolt terasz tartozik.
A lakótér hasznos alapterülete: 64m2
Terasz: 17,4nm
Kertkapcsolat: 45,16m2

A társasház 2024-ben kapta meg a használatba vételi engedélyt, az építés során kizárólag prémium anyagok kerültek felhasználásra.
Az otthon melegéről és az alacsony rezsiről egyedi mérős távhő gondoskodik padlófűtéssel.
A 30cm-es főfalakra 15 cm homlokzati hőszigetelés került, 3 rétegű hő-és hangszigetelt üvegezésű, műanyag nyílászárókkal rendelkezik, rejtett redőnytokkal.
A kulcsrakész lakások modern konyhabútorral és természetesen beépített gépekkel (mosogatógép, sütő, főzőlap, páraelszívó, hűtő) felszereltek.
A nappaliban hűtő-fűtő klíma biztosítja a mindig kellemes hőmérsékletet.

Az adásvétel során teljeskörű lebonyolítást vállalok!
Egy kellemes hír a végére: az ügyvédi díjat az eladó vállalja, a vevő részére ez nem jelent terhet!

Mind a hétköznapi élet, mind közlekedés szempontjából is kiváló helyen van, hiszen néhány percre megtalálható minden, amire szüksége lehet. Bevásárló központ, boltok, patika, orvosi rendelő, pékség, óvoda, iskola, stb.
Befektetői szándék esetén tudom vállalni az ingatlan kiadását is!
A társasház összes eladó lakását megtalálja a kínálatomban!

Keressen bizalommal, akár hétvégén is állok rendelkezésére!
(További képekért és információkért kérem hívjon!)

Lakás részletei

Ár: 84 990 000 Ft
Méret: 64 négyzetméter
Azonosító: 11539091
Irodai azonosító: 581370
Erkély mérete: 17.00 négyzetméter
Építőanyag: Tégla
Fűtés jellege: Távfűtés
Ingatlan állapota: Kitűnő
Komfort fokozat: Összkomfort
Egész szobák: 3
Nappalik: 1

Egyéb jellemzők

  • Erkély
  • Garázs
  • Klíma
  • Lift
  • Pince
  • Kertkapcsolat

Így keressen budapesti ingatlant négy egyszerű lépésben. Csupán 2 perc, kötelezettségek nélkül!

Szűkítse a budapesti ingatlanok
listáját
Válassza ki a megfelelő
budapesti ingatlant
Írjon a hirdetőnek
Várjon a visszahívásra