Eladó lakás Győr 71 900 000 Ft

Leírás


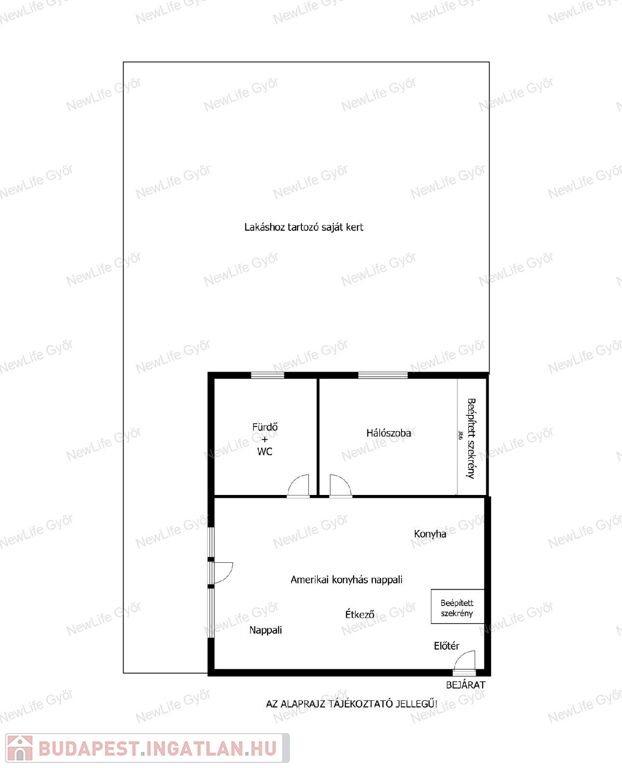
GYŐR EGYIK LEGKEDVELTEBB RÉSZÉN VÁR RÁD EGY ÚJSZERŰ ÁLLPOTÚ, FÖLSZINTES, 2 SZOBÁS, 48 m2-es LAKÁS, 250 m2-es SAJÁT KERTTEL

 

Van az a pillanat, amikor hazaérsz, becsukod magad mögött az ajtót, és egyszerűen jó érzés ott lenni.

Itt pontosan ilyen pillanatok várnak rád.

 

Képzeld el, ahogy reggel a napfény átszűrődik a nappali hatalmas üvegfelületén, miközben a frissen főtt kávé illata betölti a teret. Néhány lépés, és már a saját, 250 m²-es parkosított kertedben állsz, ahol a madárcsicsergés és a nyugalom a legtermészetesebb háttérzaj.

 

Ez nem álom – ez Győr-Ménfőcsanak egyik legcsendesebb részén található, 48 m²-es modern földszinti lakás mindezt valóra váltja.

 

 

Tér, stílus és átgondoltság – minden négyzetméter a Te kényelmedre tervezve

 

A tágas amerikai konyhás nappali (24,5 m²) a lakás központja. Világos, letisztult, és pont olyan hely, ahol jó leülni, beszélgetni, főzni, vagy csak egy fárasztó nap után lelassítani.

A gépesített konyha nemcsak esztétikus, hanem praktikus is – minden kézre áll, az étkező pedig akár 6-8 fő számára is kényelmes.

 

A 12 m²-es hálószoba igazi menedék: egy teljes falat betöltő beépített szekrénnyel, ami elegánsan elrejti a mindennapi apróságokat.

A fürdőszoba (8 m²) a modern lakások egyik mintapéldája – kád, üvegparaván, zuhanyzási lehetőség, mosó- és szárítógépnek kialakított hely, plusz extra beépített szekrények teszik tökéletessé.

 

Az előszoba (3,5 m²) is maximálisan kihasznált, beépített szekrénnyel és akasztókkal.

 

A saját kerted – ahol minden nap egy kis szabadság

 

A nappaliból kilépve egy 10 m²-es, térkővel burkolt teraszra jutsz, innen pedig a gondosan karbantartott, 250 m²-es privát kert fogad.



A füvesített részt vakondháló és automata öntözőrendszer védi, a kerítés mellett babérmeggy sor gondoskodik a zöld intimitásról.



A kert közepén egy 60 m²-es térkövezett pihenőterület található, 5×5 méteres alumínium pergolával és szerszámtárolóval – tökéletes hely egy nyári grillvacsorához, baráti összejövetelhez vagy egy csöndes délutáni pihenéshez.

 

 

Modern épület, alacsony rezsi, gondtalan élet

 

2019-ben épült, mindössze egy tulajdonosa volt

Kétszintes, 16 lakásos társasház

Fisher 3,5 kW-os klíma gondoskodik a komfortos hőmérsékletről

Rezsiköltsége kiemelkedően alacsony (közös költség: 10.455 Ft, fűtés + melegvíz télen kb. 3.500–4.000 Ft)

Az épület előtt ingyenes murvás parkoló, ahol mindig van hely

 

A lakás rugalmasan birtokba vehető, és a beépített bútorok, valamint a konyha a vételár részét képezik.

 

 

Elhelyezkedése

 

Ménfőcsanak igazi gyöngyszeme Győrnek: nyugodt, biztonságos, mégis minden karnyújtásnyira van.

A közelben megtalálsz boltokat, orvosi rendelőt, gyógyszertárat, postát, éttermet, fodrászt, templomot, és minden olyan szolgáltatást, ami a hétköznapokat kényelmessé teszi.



Kikapcsolódni pedig a közeli Achilles Parkban, Gyirmót kirándulóhelyein, a horgásztónál vagy a teniszpályán tudsz.

Ménfőcsanak mindenkinek más miatt különleges – és pont ez adja az igazi értékét.

 

 

Kinek lehet tökéletes választás ez a lakás?

 

Egyedülállóknak – mert kiszámítható, kényelmes és modern otthon, ahol minden egy kézmozdulatnyira van.

Fiatal pároknak – mert a közös élet első lépéseihez tökéletes, élhető és szerethető tér.

Idősebbeknek – mert földszinti, kertkapcsolatos, biztonságos és alacsony rezsijű.

Befektetőknek – mert Ménfőcsanak keresett lokáció, ahol az ilyen minőségű lakások kiválóan kiadhatók és stabil hozamot termelnek.

 

Ha egy modern, világos, kertkapcsolatos otthonra vágysz Győrben, ahol minden nap nyugodtan kezdődik és békésen zárul – itt megtalálod.

 

 

 

 

Ár és finanszírozás

 

A lakás irányára: 71.9 millió Ft.

 

Az ingatlan HITELKÉPES, így Babaváró, 3%-os OTTHON START hitel is igénybe vehető rá. A legtöbb típusú finanszírozási forma elérhető, így rugalmasan alakíthatod a vásárlás feltételeit.

 

 

A LAKÁS ÉS A KÖRNYÉKE ÉLŐBEN GARANTÁLTAN SZEBB ÉS LÁTVÁNYOSABB, MINT A KÉPEKEN, AMIT SZEMÉLYESEN MEGMUTATOK NEKED!

 

 

Várom hívásodat, ne maradj le róla!

Keress bizalommal, akár hétvégén is.

 

Törteli Ágnes

+ 3️⃣6️⃣ 7️⃣0️⃣ / 3️⃣3️⃣5️⃣ 5️⃣1️⃣2️⃣1️⃣

Lakás részletei

Ár: 71 900 000 Ft
Méret: 49 négyzetméter
Azonosító: 11601241
Irodai azonosító: 718800818
Emelet: Földszint
Építőanyag: Tégla
Fűtés jellege: Központi
Ingatlan állapota: Kitűnő
Komfort fokozat: Összkomfort
Egész szobák: 2

Egyéb jellemzők

  • Lift

Így keressen budapesti ingatlant négy egyszerű lépésben. Csupán 2 perc, kötelezettségek nélkül!

Szűkítse a budapesti ingatlanok
listáját
Válassza ki a megfelelő
budapesti ingatlant
Írjon a hirdetőnek
Várjon a visszahívásra