Eladó lakás Győr 65 900 000 Ft

Leírás


KIZÁRÓLAG IRODÁNK KÍNÁLATÁBAN!

 

Győr, Marcalváros, Ikva úton eladó teljesen felújított lakás csodás panorámával, mindent igényt kielégítően.  

 

A közelben posta, élelmiszerboltok, Győr Pláza, kórház, iskolák, óvodák, buszmegállók, mind-mind néhány perc sétára elérhető. Sőt, élelmiszerbolt közvetlenül a társasház mellett!

Parkolásra az épület előtt és mögött is rengeteg a hely. Tárolásra a földszinten és a lakás mellett közvetlen is van lehetőség saját tárolórészben.

 

A társasház korszerűsítése, szigetelése megtörtént. A 11 emeleten elhelyezkedő lakás tetőszigetelése kívülről is hibátlan, sosem volt beázás, és belül sem hagyták ezt a véletlenre a tulajdonosok, álmennyezet fölött, dupla hőtükörfólia közt szigeteléssel precízen megoldották. Ha valakiben még lenne kétely, két klíma is beszerelésre került. Itt zajra, melegre, beázásra megvannak a top megoldások.

A szinten két lakás van még, mindkettőben egy-egy kedves hölgy lakó él, tehát oldalról is nyugalom van ezen a szinten.

Mi történik, ha elromlik a lift? A házban két lift működik, bármi gond lenne az egyikkel (ritkán van erre példa), akkor a másikat használva a lakás felülről könnyedén megközelíthető.

A felújítások sora pedig folytatódik, a jelen tulajdonosok 13 év alatt számos modernizálást végeztek még a lakáson.

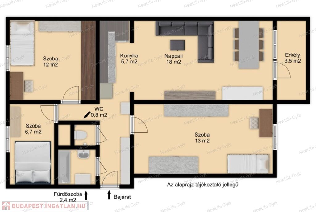
A nappaliba áthelyezésre került a konyha, mely egy újabb fél szobát eredményezett. A reggeli kávé nyugodt elfogyasztását és az esti romantikázást pedig a kivételes panorámával rendelkező erkély biztosítja.

Nyílászáróit tekintve az ablakok kétrétegű műanyag hő – és hangszigetelt, bejárati ajtó több ponton záródó műanyag, szintén újszerűek, az ablakokon pedig redőny és rolós szúnyogháló is beépítésre került. 

A villanyvezetékek komplett cseréje is megtörtént, konnektorok száma is sokszorosa lett az eredetinek.

A szobákban beépített szekrények segíti a tárolást, több mozdítható bútor pedig akár maradhat is (áregyeztetéssel). A fürdőszoba felújítása korábban történt, ahogy a vízvezetékek cseréje is.

A társasház tiszta, rendezett, lakói összetartó közösséget alkotnak. A lépcsőházba belépni és azt elhagyni is csak kulccsal/bilétával lehetséges.

A lakás rezsije kifejezetten alacsonynak mondható. A fűtési költség minimális, egész télen el vannak zárva a radiátorok (egyedi mérősek), mégis nagyon kellemes a hőmérséklet. A teljes lakás 2 hónapja lett kifestve, 3D-s tapétával dekorálva.

 

Az ingatlanpiacon csak néhány ilyen panellakás van a kínálatban.

Ne maradjon le róla!

 

Az ingatlan tehermentes.

 

 

A jelen hirdetésben rögzített, az ingatlannal kapcsolatos adatok, információk az Eladó/Megbízó tájékoztatása alapján kerültek meghatározásra.

 

 

Irodánkban az alábbiakkal tudjuk segíteni a gyors és megbízható ügyintézést:

-bankfüggetlen hitelügyintézés, CSOK

-energetikai tanúsítvány

-építésztervezés

-értékbecslés

-ügyvédi szerződések, jogi tanácsadás

 

Lakás részletei

Ár: 65 900 000 Ft
Méret: 68 négyzetméter
Azonosító: 11579088
Irodai azonosító: 718800692
Építőanyag: Panel
Fűtés jellege: Egyéb
Ingatlan állapota: Felújított
Komfort fokozat: Összkomfort
Egész szobák: 3
Fél szobák: 1

Egyéb jellemzők

  • Lift

Így keressen budapesti ingatlant négy egyszerű lépésben. Csupán 2 perc, kötelezettségek nélkül!

Szűkítse a budapesti ingatlanok
listáját
Válassza ki a megfelelő
budapesti ingatlant
Írjon a hirdetőnek
Várjon a visszahívásra