Eladó lakás Győr 47 900 000 Ft

Leírás


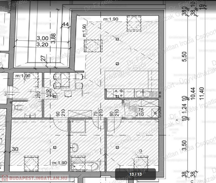
Alakítsd kedvedre! Győr – Szabadhegyen ebben a 9 lakásos társasházban vár ez

a nappali + 2 szobás, hátsó udvarra néző tetőtéri téglalakás fűtéskészen.

Bruttó: 75 nm / nettó 63,38 nm                       

Déli tájolás

Klíma előkészítés

Nagy térkövezett, füvesített közös udvar vár

Az autód zárt udvarban parkolhat. (+ 2 M Ft)

Közös költség 14 000 Ft / hó

Hívj és mutatom élőben is.

 

Műszaki infó:

- Falak: Leier 30 N+F tégla, Válaszfalak Leier 10 N+F tégla, lakások között hanggátló fal

- 15 cm homlokzati hőszigetelés,

- Födém 6 cm-es AUSTROTHERM lépésálló hőszigetelésre 6 cm vasalt fűtőbeton kerül

- Hőszigetelés: A tetőszerkezetbe 30 cm vastag hőszigetelés készül párafékező hőtükrös fóliával

- Vasbeton födém a szintek között

- Cserépfedés a tetőn

- Velux nyílászárók                

- A fűtés kondenzációs gázkazán  padlófűtés,

- A fürdőben törölközőszárítós radiátor 

- Átfolyós gázkazán meleg a vízhez.

 

MINIMUM 50% ÖNERŐVEL RENDELKEZŐ VÁSÁRLÓT VÁRUNK!

Gyere, tegyél egy ajánlatot! Várom hívásod! Hartmann-né Viki Tel.: +36 20 481 3369

Lakás részletei

Ár: 47 900 000 Ft
Méret: 75 négyzetméter
Azonosító: 11578331
Irodai azonosító: 210600633
Cím: József Attila
Emelet: 2. emelet
Építőanyag: Tégla
Fűtés jellege: Egyéb
Ingatlan állapota: Kitűnő
Komfort fokozat: Összkomfort
Egész szobák: 3

Egyéb jellemzők

  • Lift

Így keressen budapesti ingatlant négy egyszerű lépésben. Csupán 2 perc, kötelezettségek nélkül!

Szűkítse a budapesti ingatlanok
listáját
Válassza ki a megfelelő
budapesti ingatlant
Írjon a hirdetőnek
Várjon a visszahívásra