Eladó lakás Győr 47 900 000 Ft

Leírás

Győrszabadhegy frekventált részén, csendes, belső udvarra néző déli tájolású, tetőtéri lakás eladó!

BEFEKTETŐKNEK, EGYETEMISTÁKNAK, 1 lakást vásárlóknak is egyaránt kitűnő választás!

GYŐR-SZABADHEGY frekventált részén, 9 lakásos társasház 2. emeletén eladó egy tégla építésű, déli fekvésű, tágas, világos, tetőtéri lakás.
A ház 2016-ban épült, de a 3 tetőtéri lakás később került kialakításra és kapta meg a használatbavételi engedélyt.

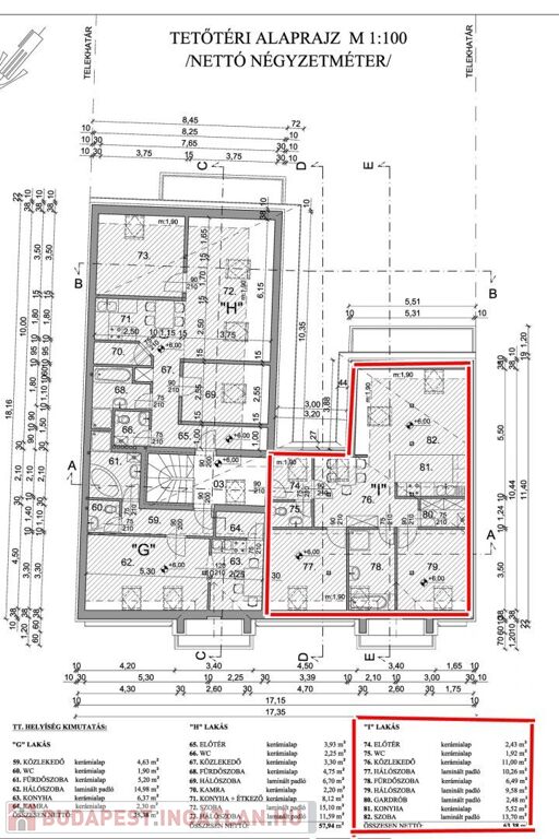
A kínált lakás 63,38 m2 nettó hasznos alapterületű.
Helyiségei: amerikai konyhás nappali, 2 hálószoba, fürdőszoba, WC, közlekedő, kamra, gardrób.

Az ár az emelt szintű fűtéskész állapotra vonatkozik. Előzetes egyeztetés után a kivitelező az Ön igényeire szabva vállalja a kulcsrakész befejezést is.

Műszaki tartalom:
- 30-as Leier N+F tégla főfalak
- 10 cm-es tégla válaszfalak, lakások között hanggátló fal
- 15 cm homlokzati szigetelés
- födémben 30 cm szigetelés párazáró fóliával
- VELUX fa tetőtéri ablakok kívül hővédő-, belül fényzáró rolóval
- FŰTÉS Saunier Duval kondenzációs gázkazánnal, hőleadás a teljes lakásban padlófűtés
- meleg víz gázkazán, átfolyós rendszerű

B energetikai tanúsítvány.

A közös költség 12.000.- Ft

A társasház elektromos kapun keresztül megközelíthető, zárt udvarral rendelkezik, ahol egy kocsibeállót kötelezően meg kell vásárolni. Ennek ára 2 M Ft.

Az ingatlan tömegközlekedéssel is könnyen megközelíthető. A közelben gyalogos távolságra elérhető: boltok, iskola, óvoda.

Amennyiben felkeltettem érdeklődését, kérem hívjon telefonon időpont egyeztetéshez.
Várom hívását! 20/2777237

Lakás részletei

Ár: 47 900 000 Ft
Méret: 63 négyzetméter
Azonosító: 11559795
Irodai azonosító: 114750
Cím: Győr
Emelet: 2. emelet
Építőanyag: Kérdezzen rá a hirdetőtől »
Fűtés jellege: Cirkó
Ingatlan állapota: Átlagos
Építési év: Új építésű
Egész szobák: 3

Egyéb jellemzők

  • Erkély

Így keressen budapesti ingatlant négy egyszerű lépésben. Csupán 2 perc, kötelezettségek nélkül!

Szűkítse a budapesti ingatlanok
listáját
Válassza ki a megfelelő
budapesti ingatlant
Írjon a hirdetőnek
Várjon a visszahívásra