Eladó lakás Győr 47 990 000 Ft

Leírás

Új építésű, 28 lakásos, prémium tégla társasház – A, B, C épület
Kertkapcsolatos, belső kétszintes, galériás és penthouse lakások 39,95 m² – 86,81 m² között liftes társasházban

MIÉRT EZ LESZ A KÖRNYÉK ÚJ KEDVENCE?

✔ Új építés, modern műszaki tartalom = minimális karbantartás
✔ Időtálló tégla szerkezet
✔ Letisztult, fiatalos design
✔ Befektetésnek és első lakásnak is ideális
✔ Magas bérbeadhatóság fiatal célcsoportnak

A ÉPÜLET – PRÉMIUM ÉLMÉNY
• Mélygarázs közvetlen kapcsolattal
• LIFT
• Tetőszinten exkluzív penthouse lakások
• Közös kerékpár tároló

B ÉS C ÉPÜLET – LOFT HANGULAT, EXTRA TÉRÉLMÉNY
• Földszinten kertkapcsolatos lakások fedett terasszal
• Belső kétszintes lakások
• Látványos pillangó lépcső
• Galériás kialakítás
• Egyedi, fiatalos térstruktúra

Ha unod az egyforma lakásokat, itt végre karaktert kapsz.

MŰSZAKI TARTALOM:
- LEIERTHERM 30 N+F vázkerámia falazat
- LEIERTHERM 25/30 AKU hanggátló lakáselválasztó tégla falazat
- Monolit vasbeton teherhordó szerkezet, födém, pillérek, fal
- 15 cm AUSTROTHERM AT-H-80 expandált polisztirolhab homlokzati hőszigetelés
- AUSTROTHERM AT-L2 lépéshangszigetelés a padlózatban
- ROCKWOOL kőzetgyapot hőszigetelés a tűzbiztonsági helyeken
- Kömmerling, 3 rétegű üveggel ellátott műanyag ablakok
- 5 pontos záródó biztonsági beltéri ajtó
FŰTÉS: központi kondenzációs gázkazánnal történik, lakásonként egyedi hőmennyiségmérővel és hőmérséklet szabályozó termosztáttal
- Hőleadó PADLÓFŰTÉS, fürdőben kiegészítve törölközőszárító radiátorral
- meleg víz gázkazánnal puffer tartállyal, egyedi méréssel
- KLíMA előkészítés
- 1x32 A áram a lakásokban

Az ár emelt szintű fűtéskész állapotra vonatkozik, tartalmazza a telekhányadot és az 5% Áfát.
Várható ÁTADÁS: 2027.03.30.
Kulcsrakész befejezés egyéni megállapodás alapján kérhető.

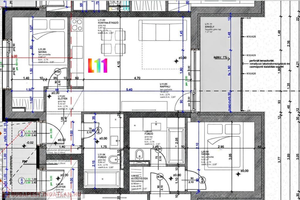
A földszinti 39,95 m2-es L11 LAKÁS HELYISÉGEI:
ELŐTÉR 4,42 m2
KONYHA-ÉTKEZŐ 4,57 m2
NAPPALI 16,86 m2
FÜRDŐ 5,54 m2
HÁLÓSZOBA 8,89 m2

A lakáshoz tartozik egy 7,45 m2-es ERKÉLY

Minden lakáshoz kötelező megvásárolni 1 db beállót:
Felszíni parkolók2,9 millió Ft
az A épület alatti mélygarázsban fedett beállók: 4,9 millió forintért
Tárolók vásárolhatóak: 3,5- 3,9 millió forintért.

KINEK AJÁNLJUK?

Fiatal pároknak, első lakás vásárlóknak
Befektetőknek, akik kiadható, értékálló ingatlant keresnek
Városi életet kedvelőknek, akik nem mondanak le a zöld környezetről

MOST ÉRDEMES LÉPNI

Az új építésű projektek ára az építkezés előrehaladtával emelkedik.
Foglalj most, és biztosítsd be a legjobb pozíciót!

Érdeklődj még ma – válaszd ki a saját stílusodhoz illő lakást az A, B vagy C épületben!

Lakás részletei

Ár: 47 990 000 Ft
Méret: 40 négyzetméter
Azonosító: 11599489
Irodai azonosító: 124999
Cím: Győr
Emelet: Földszint
Építőanyag: Kérdezzen rá a hirdetőtől »
Fűtés jellege: Cirkó
Ingatlan állapota: Átlagos
Építési év: Új építésű
Egész szobák: 2

Egyéb jellemzők

  • Erkély

Így keressen budapesti ingatlant négy egyszerű lépésben. Csupán 2 perc, kötelezettségek nélkül!

Szűkítse a budapesti ingatlanok
listáját
Válassza ki a megfelelő
budapesti ingatlant
Írjon a hirdetőnek
Várjon a visszahívásra