Eladó lakás Érd 94 900 000 Ft

Leírás

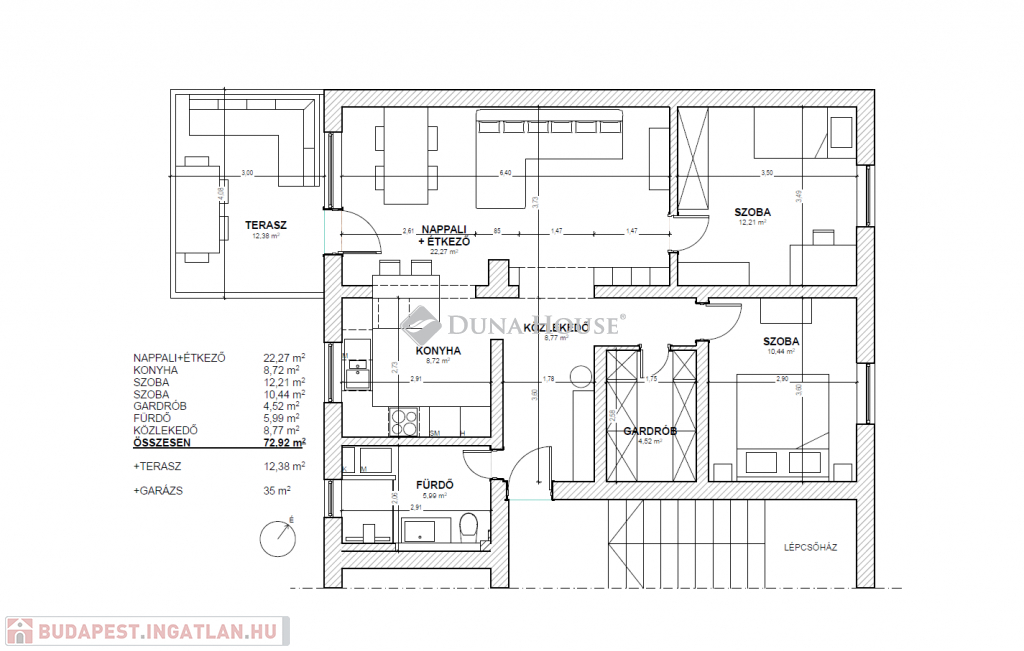
VALÓDI RITKASÁG ÉRDEN!TERASSZAL, KÉTÁLLÁSOS GARÁZZSAL !

Érd Parkvárosban, csendes utcájában, családi házas környéken, eladó egy 4 lakásos társasház első emeletén, teljes körűen felújított teraszos lakás.
A lakás 72,9 m2-es nettó alapterületű két hálószobás, amerikai konyhás nappalival lett kialakítva.
A nappaliból nyíló 12 m2-es fedett terasz a csendes udvarra néz. A
lakáshoz tartozik még egy külön HRSZ számon nyilvántartott 35 m2-es garázs, melyben két autó is kényelmesen elfér és közvetlenül a lépcsőházból is megközelíthető.
A terasz és a garázs is a vételár részét képezik.
A tarsasházhoz egy közös használatú kert is tartozik.
A lakást a jelenlegi tulajdonosa újíttatta fel 2020-ban.
Modern fürdőszoba, épített zuhanyzóval került kialakításra, a kazán és mosógép szeparáltan lett benne elhelyezve.
A több mint 30 nm-es, nappali + étkező + konyha, egyedi falfestésével és melegszínű parketta burkolatával teremt egyszerre modern és letisztult, mégis otthonos érzést.
A két hálószoba alaprajzi elrendezése lehetővé teszi, hogy bármelyik szobában kialakítható a szülői háló, vagy a gyerekszoba, vagy akár vendég- és dolgozószoba.
Az előtér közlekedő részéből nyílik továbbá egy 4,5 m2-es gardróbszoba is. A hálószobák észak-keleti tájolásúak, az élettér dél-nyugati fekvésű, térkapcsolataik és nagy ablakaik miatt egész évben világos és napos .
Fűtés-Hűtés:A lakásban kombi-cirkó biztosítja a radiátoros fűtést és használati melegvizet, a kazán és a radiátorok is cserére kerültek a felújításkor.
A hálószobában 2023-ban telepítésre került továbbá egy 2,8 kW-os hűtő-fűtő klímaberendezés, mely az egész lakást egymagában képes lehűteni, emellett a nappaliban található még egy hűtő klímaberendezés is.
A lakás rezsije rendkívül kedvező, egész évben havi 15.000 Ft. körül mozog. Minden fogyasztás egyedi méréssel ellátott.
A beépített bútorok: gépesített konyhabútor (beépített hűtő, mélyhűtő, Whirlpool 6th sense sütő és mikró, mosogatógép, páraelszívó), nappali könyvespolc, gardróbszekrénysor, fürdőszoba szekrény, továbbá az előtér falán található belsőépítészeti elemek a vételár részét képezik.

Érd egy dinamikusan fejlődő város, ami kiváló infrastruktúrával, jó közlekedéssel Budapesthez közel, mégis elbűvölő természeti környezettel rendelkezik. Itt minden megtalálható, ami a kényelmes és tartalmas élethez szükséges: iskolák, óvodák, bevásárlóközpontok, sportolási lehetőségek és kulturális tevékenységek egyaránt. A város kínálata és a környék nyugodt atmoszférája tökéletes kombinációt alkot azok számára, akik igazán minőségi otthont keresnek.
Ez az ingatlan egyedi lehetőséget kínál azok számára, akik egy családi házas környezetben szeretnének élni, de nem szeretnének lemondani a város közelében való lakhatás előnyeiről.

Amennyiben az ingatlan felkeltette érdeklődését, kérem keressen bizalommal!

Lakás részletei

Ár: 94 900 000 Ft
Méret: 73 négyzetméter
Azonosító: 11592484
Irodai azonosító: LK027290-5122785
Emelet: 1. emelet
Építőanyag: Tégla
Fűtés jellege: Cirkó
Ingatlan állapota: Kitűnő
Komfort fokozat: Összkomfort
Építési év: 21-50 éves
Egész szobák: 3

Egyéb jellemzők

  • Erkély
  • Garázs

Térkép


Így keressen budapesti ingatlant négy egyszerű lépésben. Csupán 2 perc, kötelezettségek nélkül!

Szűkítse a budapesti ingatlanok
listáját
Válassza ki a megfelelő
budapesti ingatlant
Írjon a hirdetőnek
Várjon a visszahívásra