Eladó lakás Debrecen 78 775 000 Ft

Leírás

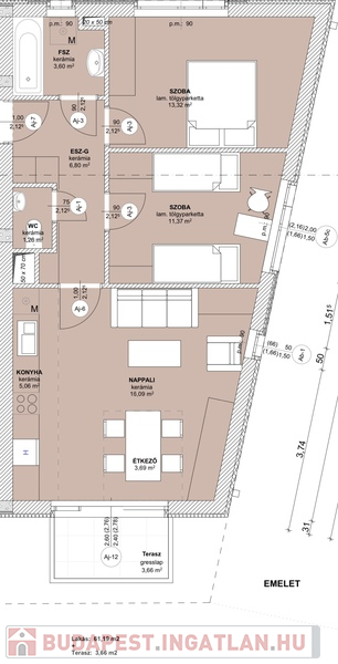
Debrecen dinamikusan fejlõdõ részén a Tócóligetben, 62m2-es, 1. emeleti, erkélyes ingatlan, új építésû 6 lakásos társasházban eladó!

Szoba 1: 13,31m2
Szoba 2: 11,37m2
Nappali+Konyha+Étkezõ: 24,84m2
Fürdõ: 3,60m2
WC: 1,26m2
Közlekedõ+Elõtér: 6,80m2
Hasznos alapterület összesen: 61,19m2
Erkély: 3,66m2

A garázs megvásárlása kötelezõ, zárt garázs kialakítására is kínálunk lehetõséget felár esetében.
Ez az ár a lakáshoz tartozó tárolót is tartalmazza.

Mûszaki tartalom:

Nyílászárók:
- Ajtók HPL vagy CPL választható színek, katalógus szerint
- 6-7 légkamrás acélmerevítésû mûanyag tokos ablakok, kívül színezett belül fehér 3 rétegû üveg, kívül alumínium párkány belül mûanyag fehér párkány
- Motoros napháló, mobil rovarhálóval
- Bejárati ajtó 90/212,5 acél szerkezetû sarok tok, lágy ütközéssel, tömör szárny

Burkolatok:
- Hideg burkolat: nettó 6000 Ft/m2
- Meleg burkolat: nettó 6000 Ft/m2
- Háló helyiségek meleg burkolatot kapnak, nappali, közlekedõ, vizes helyiségek hideg burkolatot
(Konyhában munkapult feletti 60 cm sáv, teljes hosszban. Fürdõszoba, toalett, közlekedõ, nappali- konyha teljes burkolását az ár tartalmazza)
-A burkolatokat a vevõ magának választhatja ki, a fent megjelölt árakon. Magasabb áru burkolat kiválasztása esetén, a különbözet a vevõt terheli.


Vizes helyiségek:
- Mofém csaptelepek kerülnek beépítésre
- WC: falsík alatti Geberit WC tartály
- Választható kád vagy zuhany, ami elfér a fürdõben (Ravak, Wellis)
Értékegyeztetéssel bármilyen márka/típus választható!

Konyha:
-A konyhabútort az ár nem tartalmazza, pult feletti csempe illetve a gépesítés elõkészítése benne van az árban.

Fûtés, HMV, szellõzés, hûtés:
-Hajdú hõszivattyú kerül beépítésre, ami a hûtést is biztosítja, a meleg víz ellátásáról Hajdú gázkazán gondoskodik
-Padlófûtés, fürdõszobában törölközõszárító
-Minden lakásnak helyiségenként saját hõmérséklet-szabályzása lesz
-Lakásonként egy klíma beépítését az ár tartalmazza, plusz az elõkés

Lakás részletei

Ár: 78 775 000 Ft
Méret: 62 négyzetméter
Azonosító: 11522080
Irodai azonosító: 17775
Cím: Debrecenben 62m2-es 1. emeleti erkélyes újépítésû lakás elad
Emelet: 1. emelet
Építőanyag: Tégla
Fűtés jellege: Cirkó
Ingatlan állapota: Épülő
Komfort fokozat: Összkomfort
Egész szobák: 3

Így keressen budapesti ingatlant négy egyszerű lépésben. Csupán 2 perc, kötelezettségek nélkül!

Szűkítse a budapesti ingatlanok
listáját
Válassza ki a megfelelő
budapesti ingatlant
Írjon a hirdetőnek
Várjon a visszahívásra