Eladó lakás Debrecen, Belváros, 62 190 000 Ft

Leírás

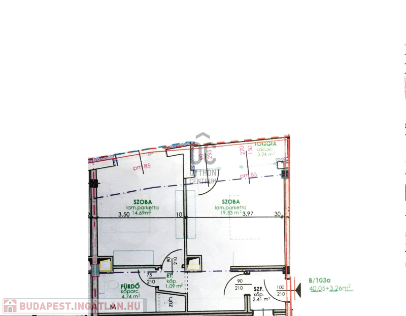
Debrecen abszolút Belvárosában, de mégis csendes övezetben, modern, egyedi megjelenésű, liftes társasház épül a földszinten 4 üzlettel és a -1 szinten teremgarázs parkolókkal. A lakások között vannak földszinti kertkapcsolatosak, és penthouse jellegűek is. A projekt tervezésénél, az elsődleges szempont az otthonos, élhető lakások építése volt. Az épületben helyet kapó lakások mindegyike egyedileg kialakított tágas terekkel, jó funkcionalitással és nagy méretű loggiákkal, teraszokkal rendelkezik. A lakások minőségi anyagok felhasználásával készülnek, a legkorszerűbb 3 rétegű üvegezésű ablakokkal, hőszivattyús klímával ellátottak. A belvárosban található ingatlan pár perc sétára található a Nagytemplomtól, a Piactól és a Bevásárló központoktól. Egyéb információért hívjon bizalommal. Ez az 1. emeleti lakás 40,05 nm-es, nappali-étkező-konyha, + 1 szobás, 3,26 nm-es erkéllyel.
Projekt bemutatása

-

Lakás részletei

Ár: 62 190 000 Ft
Méret: 40 négyzetméter
Azonosító: 11576167
Városrész: Belváros
Építőanyag: Tégla
Fűtés jellege: Központi (egyedi mérővel)
Ingatlan állapota: Kitűnő
Kilátás: udvari
Egész szobák: 2

Egyéb jellemzők

  • Erkély
  • Garázs
  • Lift
  • Kertkapcsolat
  • Tároló
  • Kocsibeálló

Így keressen budapesti ingatlant négy egyszerű lépésben. Csupán 2 perc, kötelezettségek nélkül!

Szűkítse a budapesti ingatlanok
listáját
Válassza ki a megfelelő
budapesti ingatlant
Írjon a hirdetőnek
Várjon a visszahívásra