Eladó lakás Debrecen, Belváros, 264 500 000 Ft

Leírás

Debrecen belvárosában, a Nagytemplom közvetlen közelében 90%-os készültségben kész, újépítésű lakások vásárolhatók. A társasház egy neves tervező házaspár (Balázs Csaba és Vecsey Andrea) tervei szerint készült.
Modern lakások, melyek magas minőséggel és komfortos, tágas lakóterekkel rendelkeznek.
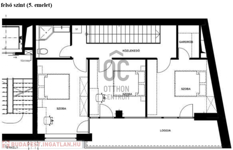
A társasházban 11 lakás került kialakításra két épületszárnyban. kilenc lakás az új baloldali épületszárnyban, kettő
pedig régi épületszárnyba került. A 11 lakásból 2 db lakás belső kétszintes kialakítású.
A lakásokhoz garázs vásárolható. A gépkocsi tárolási lehetőség az udvarból nyíló három szintes Klaus Multiparking rendszerű
11 beállós gépesített garázsban van.
Ez egy olyan ingatlan, amelyre nem kell éveket várni, hogy elkészül, tekintettel a készültségi fokra.
A kivitelező magas műszaki tartalommal valósította meg a projektet, nem spórolt a minőségi anyagokkal.
A társasház kialakítása:
-osztott, hő- és hangszigetelt, 3 rétegű, fém nyílászárók,
- vasbeton pillérvázas szerkezetű,
- fűtése padlófűtéssel, hűtés split klímával,
-egyedi mérők felszerelve minden lakásban, nagyon alacsony rezsi
Amennyiben hirdetésünk felkeltette érdeklődését, várjuk hívását a hét minden napján!
Projekt bemutatása

Igazán ritka lehetőség Debrecen legszigorúbban vett belvárosában! A Nagytemplom közvetlen közelében épülő, 90%-os készülltségben lévő, 11 lakásos társasházban új lakások eladók.
Szeretne Debrecen város történelmi belvárosa kellős közepén csendes, modern, exkluzív lakásban élni, ahol szinte minden elérhető gyalogszerrel vagy villamossal. Ajánljuk figyelmébe az alábbiakban bemutatásra kerülő, megítélésünk szerint egyedülállóan kiváló és különleges lakásokat.
Az ingatlanok, a kiemelt környezetnek megfelelő, extra műszaki tartalommal kerülnek megépítésre. Erre garancia a nemzetközi építész csapat és a felhasznált anyagok minősége. A részletes tervekről, műszaki leírásról és minden más információról szívesen adunk tájékoztatást, hívják kollégánkat a hét minden napján bizalommal!
A lakásokhoz vásárolható saját garázsok, amelyek az udvarból nyíló háromszintes „Klaus Trendvario 6300” típusú 4 db 2 tonna és 7 db 2,6 tonna teherbírású tálcával készül és távirányítóval szerelt gépkocsi liftekkel közelíthetők meg.

A 11 lakásból még elérhető ingatlanok aktuális számát a projektlapon belüli lakások oldalán találják, vagy kollégánktól érdeklődhetnek!

Lakás részletei

Ár: 264 500 000 Ft
Méret: 120 négyzetméter
Azonosító: 11470163
Városrész: Belváros
Építőanyag: Tégla
Fűtés jellege: Központi (egyedi mérővel)
Ingatlan állapota: Kitűnő
Kilátás: utcai
Egész szobák: 5

Egyéb jellemzők

  • Erkély
  • Garázs
  • Lift
  • Kertkapcsolat
  • Tároló
  • Kocsibeálló

Így keressen budapesti ingatlant négy egyszerű lépésben. Csupán 2 perc, kötelezettségek nélkül!

Szűkítse a budapesti ingatlanok
listáját
Válassza ki a megfelelő
budapesti ingatlant
Írjon a hirdetőnek
Várjon a visszahívásra