Eladó lakás Budapest XXII. ker 164 900 000 Ft

Leírás

ÁRCSÖKKENÉS!

Eladó egy ÖRÖKPANORÁMÁS társasházi lakás, garázzsal, autóbeállóval, tárolóval! Különleges, magas minőségű anyagok felhasználásával épült 6 lakásos társasházban, Rózsavölgy egyik legkedveltebb ZÖLDÖVEZETI részén elhelyezkedő lakás!

XI. és XXII. kerület határán, Rózsavölgy hegyoldali, csendes, panorámás utcájában kínálunk megvételre egy felújított állapotú, 98 m²-es örökpanorámás, egyszintes, 3 szobás, dupla teraszos (13 m2) téglaépítésű lakást, amely tökéletes választás lehet azoknak, akik a természet közelségét és a városi infrastruktúrát egyszerre szeretnék élvezni.

A lakás kertvárosias környezetben helyezkedik el, így a felhőtlen nyugalom garantált.
A lakásból gyönyörű elvehetetlen panorámás kilátás nyílik a városra.
A fűtésről gáz cirkó kondenzációs kazán gondoskodik, amely gazdaságos és hatékony megoldás.
A lakás egyszintes, két hálószobás, két fürdőszobás, ideális választás lehet mindazok számára, akik egy felújított, örökpanorámás, tágas, panorámás ingatlant keresnek Budapest szívében, akik nyugalomra és csendre vágynak, de fontos számukra a gyors belvárosi elérhetőség is.

Főbb jellemzők:
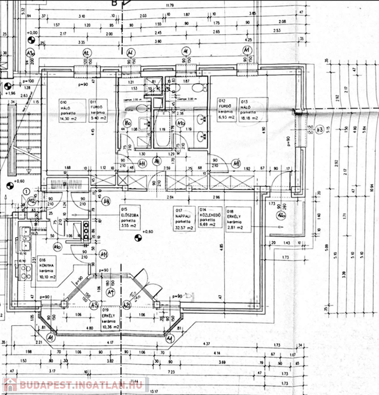
-98 m² lakótér, világos és modern belső terek
-nappali + 2 hálószoba (igény szerint 3 hálószobává átalakítható)
-két fürdőszoba
-két panorámás terasz 13 m2-en (nappaliból és az egyik hálószobából)
-rengeteg tárolóterület a lakásban és a garázsszinten is
-teljesen gépesített, modern és tágas konyha

-közös tárlóhelyiségek a garázsszinten
-nappaliban klíma
-beépített, gépesített konyhabútor
-beépített, tükrös gardrób szekrények
-kondenzációs kombi kazán
-nappaliban alternatív fűtésként plusz elektromos padlófűtés
-műanyag-aluminium ablakok
-elektromos redőnyök minden nyílászárón és szúnyogháló minden helyiségben legalább egy nyílászárón
-riasztó

A lakás felújított, kitűnő állapotban van, a KÉPEK EGY RÉSZE berendezési látványterv., amelyek a terek remek kihasználhatóságának, a színek, bútorok variálhatóságának bemutatására készültek.

A lakáshoz tartozik saját 13 m2-es teremgarázs hely vízkiállással és elektromos kiállással + 13 m2-es udvari beálló, valamint a pinceszinten egy saját 7 m2-es tároló helyiség.
A lakás vételárán felül a garázshely és az udvari autóbeálló együttes ára 10MFt., a tároló ára 5 MFt., amelyek megvásárlása kötelező.

Környék:
Csendes, zöldövezeti elhelyezkedés, panorámás utca
Játszóterek, óvoda pár perc alatt autóval elérhető, Savoya Park bevásárlóközpont a közelben
A környéken található sportpályák, játszóterek és kirándulóhelyek ideálisak családosok számára
Kiváló közlekedés: belváros 15–20 perc alatt elérhető

Képzeld el, hogy egy olyan otthonra bukkansz, ahol a madárcsicsergés az ébresztő és a napfelkeltét csodálva kávézgatsz reggelente és a csend és béke szigetén alszol el esténként.
Az utca átmenő forgalomtól mentes, rendkívül csendes.
Ez az ingatlan ritka lehetőség Rózsavölgyben, ne maradjon le róla!

A környék infrastruktúrája kiváló (41-es villamos 5 perc alatt elérhető, 150, 150B, 250, 250B buszmegálló 10 perc gyalogos távolságban elérhető).

Az ingatlan megtekintése előre egyeztetett időpontban lehetséges, akár hétvégén is.
Amennyiben felkeltette az érdeklődését, további kérdéseivel kapcsolatban várom jelentkezését!

Lakás részletei

Ár: 164 900 000 Ft
Méret: 98 négyzetméter
Azonosító: 11588190
Irodai azonosító: 390854
Cím: Rózsavölgyben Örökpanorámás Lakás!
Emelet: Földszint
Építőanyag: Tégla
Fűtés jellege: Cirkó
Ingatlan állapota: Felújított
Komfort fokozat: Összkomfort
Építési év: 11-20 éves
Tulajdonviszony: Saját
Kilátás: panorámás
Egész szobák: 3

Egyéb jellemzők

  • Erkély
  • Garázs
  • Lift
  • Pince
  • Tároló
  • Kocsibeálló

Térkép


Így keressen budapesti ingatlant négy egyszerű lépésben. Csupán 2 perc, kötelezettségek nélkül!

Szűkítse a budapesti ingatlanok
listáját
Válassza ki a megfelelő
budapesti ingatlant
Írjon a hirdetőnek
Várjon a visszahívásra