Eladó lakás Budapest XVIII. ker 83 990 000 Ft

Leírás

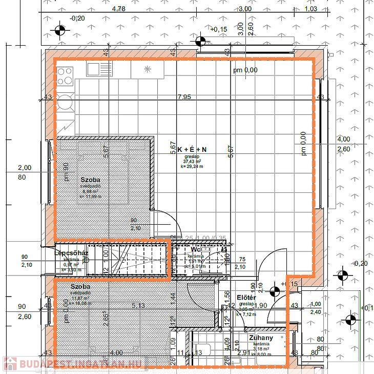
ÚJ ÉPÍTÉSŰ, ENERGIATAKARÉKOS OTTHONOK A XVIII. KERÜLETBEN, BÓKAYTELEPEN



Kiváló közlekedési adottságokkal rendelkező, csendes mellékutcában kínálunk eladásra négy, külön bejáratú, új építésű lakást. Az ingatlan egy kétlakásos ikerházként épül, azonban használati megállapodással 4 önálló, szeparált lakás kerül kialakításra.



Főbb jellemzők:

• nappali + étkező + amerikai konyha

• lakásonként saját garázs az épületben, vagy felszíni kocsibeálló

• saját kertrész/terasz használati megosztás alapján

• hőszivattyús fűtés-hűtés, padlófűtéssel és fan-coil rendszerrel

• 3 rétegű nyílászárók, redőny és szúnyogháló előkészítés

• riasztó előkészítés, kaputelefon



Belső kialakítás:

A burkolatok, szaniterek és beltéri ajtók katalógusból választhatók meghatározott értékhatárig, így a vevő saját igényeihez alakíthatja új otthonát.



Műszaki tartalom:

• vasbeton és tégla szerkezet

• 12–17 cm homlokzati szigetelés, 40 cm födémszigetelés

• prémium anyagok, első osztályú kivitelezés

• alacsony fenntartási költség, modern megoldások



Elhelyezkedés:

• csendes mellékutca, mégis jó közlekedéssel

• közel iskola, óvoda, LIDL, OTP, gyógyszertár, orvosi rendelő

• gyorsan elérhető a belváros, Határ úti M3 metró 15 perc az 50-es villamossal



A lakáshoz opcionálisan megvásárolható garázs 5.500.000 Ft összegben, vagy felszíni kocsibeálló 1.500.000 Ft összegben.



Az ingatlan jelenleg 30-40%-os készültségi szinten áll, az átadás várható időpontja: 2026. I. negyedév.

Az ingatlanra 3 év teljes körű garancia és 10 év szavatosság vonatkozik.





Lakás részletei

Ár: 83 990 000 Ft
Méret: 69 négyzetméter
Azonosító: 11566682
Irodai azonosító: 23277
Emelet: Földszint
Építőanyag: Kérdezzen rá a hirdetőtől »
Ingatlan állapota: Átlagos
Egész szobák: 2
Fél szobák: 1

Így keressen budapesti ingatlant négy egyszerű lépésben. Csupán 2 perc, kötelezettségek nélkül!

Szűkítse a budapesti ingatlanok
listáját
Válassza ki a megfelelő
budapesti ingatlant
Írjon a hirdetőnek
Várjon a visszahívásra