Eladó lakás Budapest XVIII. ker 155 000 000 Ft

Leírás

XVIII. kerület frekventált részén, a Kossuth Ferenc-telepen kínálok megvételre egy igazán különleges, 2022-ben épült, modern otthont, amely már első pillantásra beleszeretős!

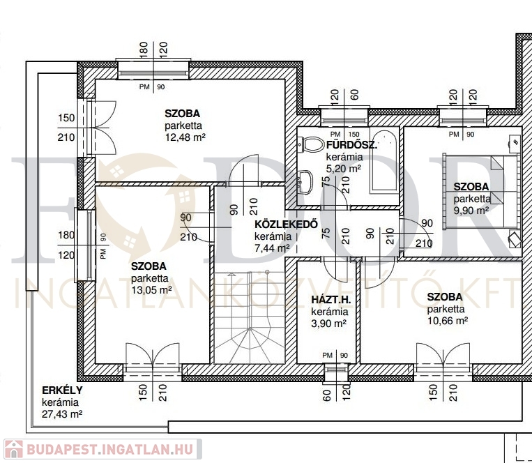
Egy 320 m²-es telken helyezkedik el ez a 129 m²-es, kétszintes, újszerű állapotú ikerház bal oldali lakása, amely minden részletében a mai kor igényeihez igazodik – legyen szó kényelemről, energiatakarékosságról vagy stílusról.Az ingatlan elrendezése rendkívül praktikus: amerikai konyhás nappali + 5 hálószoba biztosítja a tágas életteret akár nagyobb család számára is. A felső szintet körbe ölelő erkély különleges hangulatot ad a háznak, ahol a reggeli kávé vagy az esti pihenés is igazi élménnyé válik.

A minimál stílusban épült otthon, magas műszaki tartalommal rendelkezik:
• levegő-víz hőszivattyús fűtési rendszer (megújuló energia)
• mindkét szinten padlófűtés
• 5 db klíma gondoskodik a hűtésről
• 10 kW-os napelem rendszer a kedvező fenntartásért
• 10 cm homlokzati szigetelés
• 30 cm Porotherm főfalak, 10 cm válaszfalak
• lapostetős kialakítás

A kényelmet tovább növelik:
• elektromos kapu
• kiépített kamerarendszer
• 3 rétegű thermo üveges, redőnnyel és szúnyoghálóval felszerelt nyílászárók
• motorizált redőny a teraszajtónál

A telken akár 4 autó számára is van beállási lehetőség. A földszinten jelenleg a garázsból egy szoba került kialakításra, azonban igény esetén a tulajdonos visszaalakítja garázzsá – ennek költsége a vételár részét képezi.A gépesített konyhabútor szintén az árban benne van, így Önnek már csak költöznie kell!

Az ingatlan per- és tehermentes, így akár azonnal birtokba vehető!

Ha egy modern, energiatakarékos, tágas és azonnal élhető otthont keres frekventált környezetben, akkor ezt a lehetőséget érdemes személyesen is megtekinteni!

Irodánk teljes körű segítséget nyújt:
•díjmentes hitelügyintézés
•CSOK Plusz tanácsadás
•banki partneri háttér a vásárlás minden lépésében

Az alaprajz és a leírás tájékoztató jellegű!

További kérdéseivel keresse irodánkat bizalommal!

Lakás részletei

Ár: 155 000 000 Ft
Méret: 129 négyzetméter
Azonosító: 11611799
Irodai azonosító: 351935
Emelet: 2. emelet
Építőanyag: Tégla
Ingatlan állapota: Kitűnő
Komfort fokozat: Összkomfort
Egész szobák: 5

Egyéb jellemzők

  • Erkély
  • Lift
  • Kertkapcsolat

Így keressen budapesti ingatlant négy egyszerű lépésben. Csupán 2 perc, kötelezettségek nélkül!

Szűkítse a budapesti ingatlanok
listáját
Válassza ki a megfelelő
budapesti ingatlant
Írjon a hirdetőnek
Várjon a visszahívásra