Eladó lakás Budapest XIX. ker 105 990 000 Ft

Leírás

​Modern Elegancia és Parkra Néző Panoráma a XIX. kerületben!

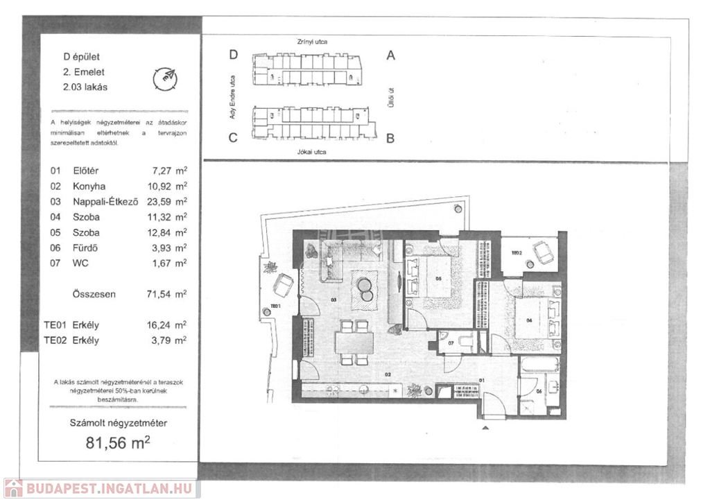
​Eladó a XIX. kerület kedvelt, csendes részén, az Zrínyi utcában egy 2023-as építésű, netto 72 m²-es, 3 szobás, prémium kategóriás tégla lakás. A lakáshoz 2 külön erkély tartozik. Az egyik erkély a nappali, és egy hálószobát körülölelve helyezkedik el, a másik egy különálló, a másik hálószobához tartozó.

Ha nem akarsz felújítással bajlódni, és egy fenntartható, modern otthont keresel, megtaláltad!

​Miért ezt a lakást válaszd?

​Korszerű gépészet: A jövő technológiája! Mennyezeti hűtés-fűtés!
Házközponti őszivattyús rendszer gondoskodik a kellemes hőmérsékletről télen-nyáron. Nincsenek zavaró fűtőtestek, csak tiszta terek és rendkívül alacsony rezsi.

​Óriási Erkély: A 20 m²-es terasz igazi kültéri nappaliként funkcionál, ahonnan közvetlen kilátás nyílik a parkra – tökéletes helyszín a reggeli kávéhoz vagy esti kikapcsolódáshoz.

​Elrendezés: Amerikai konyhás nappali + 2 külön nyíló hálószoba, külön fürdő és WC, ami ideális családoknak vagy Home Office-hoz is.
​Felszereltség: Teljesen gépesített, beépített minőségi konyhabútor és modern műanyag nyílászárók.

​Környék és Életérzés:
​A társasház tiszta, rendezett, a lakóközösség pedig kimondottan kulturált. Bár a környék csendes, a lokáció verhetetlen:
​1-2 perces séta: Buszmegállók, villamos, bankok, iskolák és bevásárlási lehetőségek.
​Zöld környezet, mégis minden karnyújtásnyira a várostól.
​A lakás tehermentes és azonnal költözhető!
​Irányár: [114.000.000] Ft

Extrák: A lakáshoz saját MÉLYGARÁZS BEÁLLÓ (13 NM) és ABLAKOS TÁROLÓ (4,5 NM) is tartozik.
Irányár:
Tárolo:4.300.000 FT
Garázs: 5.900.000 FT
HÍVJON BIZALOMMAL, TEKINTSÜK MEG EGYÜTT!

Lakás részletei

Ár: 105 990 000 Ft
Méret: 82 négyzetméter
Azonosító: 11600342
Irodai azonosító: 392767
Cím: Vas Gereben köz
Emelet: 2. emelet
Építőanyag: Tégla
Fűtés jellege: Hőszivattyú
Ingatlan állapota: Kitűnő
Komfort fokozat: Összkomfort
Építési év: 1-5 éves
Tulajdonviszony: Saját
Kilátás: utcai
Egész szobák: 3

Egyéb jellemzők

  • Erkély
  • Garázs
  • Lift
  • Pince
  • Tároló

Térkép


Így keressen budapesti ingatlant négy egyszerű lépésben. Csupán 2 perc, kötelezettségek nélkül!

Szűkítse a budapesti ingatlanok
listáját
Válassza ki a megfelelő
budapesti ingatlant
Írjon a hirdetőnek
Várjon a visszahívásra