Eladó lakás Budapest XIX. ker 99 900 000 Ft

Leírás

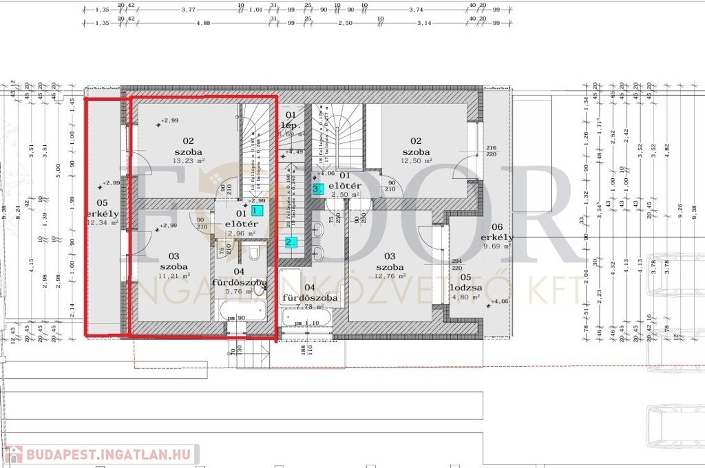
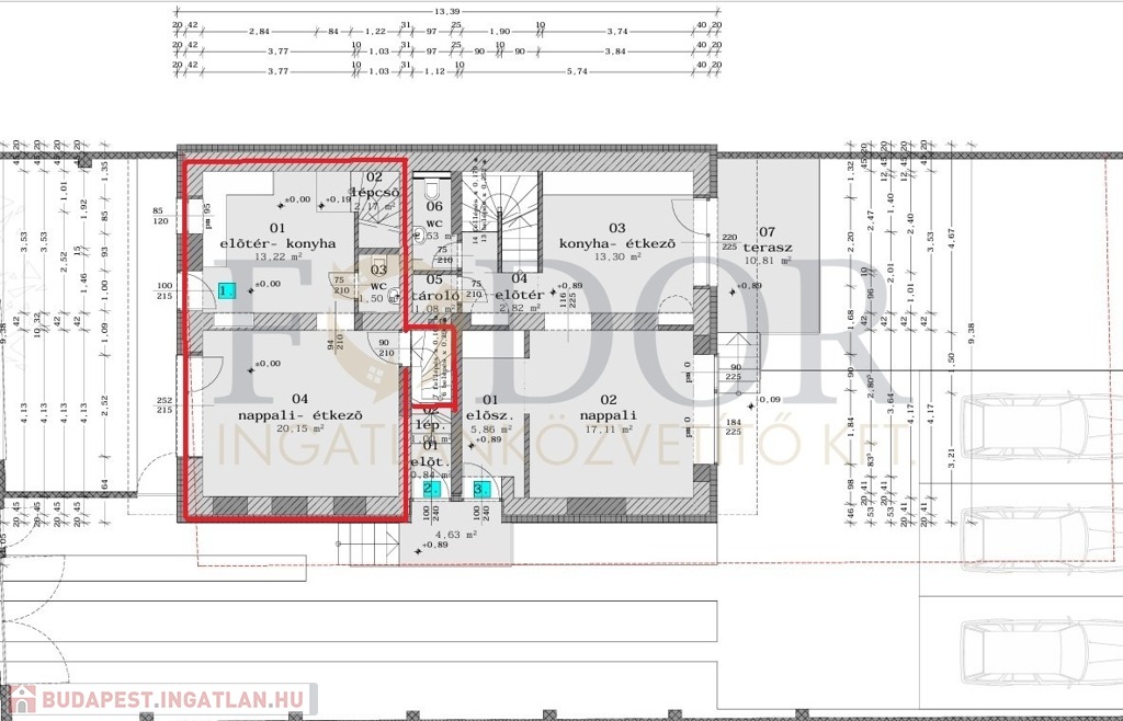
Kertes, belső kétszintes új építésű lakás Kispest kertvárosi részén
Kispest egyik legkedveltebb, csendes kertvárosi utcájában kínálok megvételre egy belső kétszintes kialakítású, saját kertkapcsolatos új építésű lakást, amely tökéletes választás azok számára, akik egy családi ház hangulatát szeretnék élvezni társasházi keretek között.
A lakás egy exkluzív, mindössze 3 lakásos társasház része, ahol a hangsúly a minőségi kivitelezésen és az élhető, otthonos tereken van.
• Bruttó alapterület: 96,65 m²
• Nettó alapterület: 85,58 m² + terasz + erkély
• Privát kert: kb. 40 m²
• Elosztás: amerikai konyhás nappali + 2 szoba
• Extrák: saját pincerész, tároló, lépcsőház (össz.: 10,71 m²)
• Ár: 99.900.000 Ft

Prémium életérzés egy kis lakásszámú társasházban
A társasház mindössze 3 lakásból áll, így garantált a nyugodt, családias környezet.
A kínálatban jelenleg további két lakás is elérhető:
• egy tetőtéri, tágas terekkel rendelkező, 89 négyzetméteres, nappali +2 szobás lakás. Ára: 96,9 MFt.
• valamint egy nagyobb alapterületű,112 m²-es nettó alapterülettel rendelkező, belső kétszintes, nappali + 2 hálószobás, közel 200 m²-es privát kerttel rendelkező otthon. Ára: 133 Millió Ft.

Műszaki tartalom – modern technológia, alacsony fenntartás
• 38-as tégla falazat, 15 cm homlokzati szigeteléssel
• Panasonic hőszivattyú (6 kW) + 200 literes melegvíztároló
• teljeskörű padlófűtés
• 3 db inverteres klíma / lakás
• elektromos alumínium redőnyök
• 3×16 Amper + H-tarifa
• viacolor burkolatú beálló
• motoros kapu

Lokáció – kertvárosi nyugalom
Kiváló infrastruktúra, minden fontos szolgáltatás perceken belül elérhető, miközben a környezet csendes, zöldövezeti.

Átadás: 2026. II.-III. negyedév
Ez a lakás ideális választás, ha egy új építésű, energiatakarékos, modern otthont keres, amely nem csak műszakilag, hanem hangulatában is kiemelkedik a kínálatból.

Keressen bizalommal további információért, alaprajzokért és személyes egyeztetésért!
A leírás és az alaprajz kizárólag tájékoztató jellegű.
IRODÁNK INGYENES 7HITELÜGYINTÉZÉSSEL, TANÁCSADÁSSAL, SZÁMOS BANK AJÁNLATÁVAL, OTTHON START HITELLEL ÉS ÚJ CSOK PLUSZ FOLYÓSÍTÁSÁVAL VÁRJA ÜGYFELEIT.

Lakás részletei

Ár: 99 900 000 Ft
Méret: 96 négyzetméter
Azonosító: 11614615
Irodai azonosító: 346161
Emelet: Földszint
Építőanyag: Tégla
Ingatlan állapota: Kitűnő
Komfort fokozat: Összkomfort
Építési év: Új építésű
Egész szobák: 3

Egyéb jellemzők

  • Erkély
  • Lift
  • Kertkapcsolat

Így keressen budapesti ingatlant négy egyszerű lépésben. Csupán 2 perc, kötelezettségek nélkül!

Szűkítse a budapesti ingatlanok
listáját
Válassza ki a megfelelő
budapesti ingatlant
Írjon a hirdetőnek
Várjon a visszahívásra