Eladó lakás Budapest XIV. ker 168 000 000 Ft

Leírás

Világos, panorámás, nappali + 3 szobás lakás Zugló csendes utcájában!
Megvételre kínálunk Zugló egyik nyugodt, csendes utcájában, egy 2018-ban épült társasházban található, újszerű állapotú, modern kialakítású lakást.
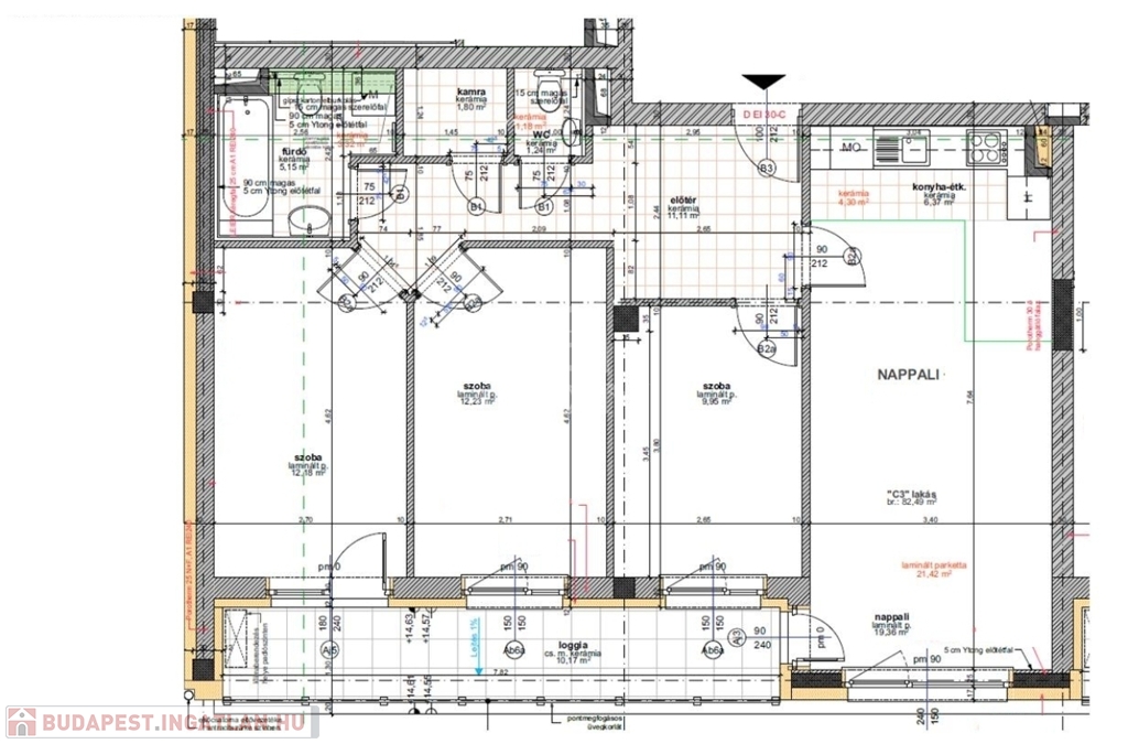
A nappali + 3 külön nyíló hálószobás, kiváló elosztású ingatlan tágas, világos terekkel rendelkezik. A nappaliból egy 10 m²-es panorámás terasz nyílik, amely napellenzővel felszerelt, így ideális helyszíne a pihenésnek.
Főbb jellemzők:
• Lakás alapterülete: 79 m²
• Terasz: 10 m²
• Építés éve: 2018
• Állapot: újszerű
• Elosztás: nappali + 3 külön nyíló hálószoba
• Fürdőszoba, valamint külön wc
• Hűtő-fűtő klíma minden helyiségben
• Beépített szekrények a szobákban
• Délnyugati tájolás, egész nap világos helyiségek
Az ingatlan ideális választás családoknak, akik csendes, zöldövezeti környezetben szeretnének élni, miközben fontos számukra a város közelsége.
A környék infrastruktúrája kiváló: iskola, óvoda, bevásárlási lehetőségek néhány perc sétával elérhetők. A lakás tömegközlekedési kapcsolatai kiemelkedőek, az Örs vezér tere és a Bosnyák tér több járattal gyorsan és kényelmesen megközelíthető, a közeli busz- és trolimegállók rövid sétatávolságra találhatók. A környék jól kapcsolódik a város vérkeringéséhez, miközben megőrzi csendes, zöldövezeti jellegét.

Lakás részletei

Ár: 168 000 000 Ft
Méret: 79 négyzetméter
Azonosító: 11592204
Irodai azonosító: 391536
Cím: Panorámás, 4 szobás Kiszuglóban!
Emelet: 5. emelet
Építőanyag: Tégla
Fűtés jellege: Házközponti (egyedi mérővel)
Ingatlan állapota: Kitűnő
Komfort fokozat: Összkomfort
Építési év: 6-10 éves
Tulajdonviszony: Saját
Kilátás: panorámás
Egész szobák: 4

Egyéb jellemzők

  • Erkély
  • Garázs
  • Lift
  • Pince
  • Tároló

Térkép


Így keressen budapesti ingatlant négy egyszerű lépésben. Csupán 2 perc, kötelezettségek nélkül!

Szűkítse a budapesti ingatlanok
listáját
Válassza ki a megfelelő
budapesti ingatlant
Írjon a hirdetőnek
Várjon a visszahívásra