Eladó lakás Budapest XIII. ker 143 001 250 Ft

Leírás


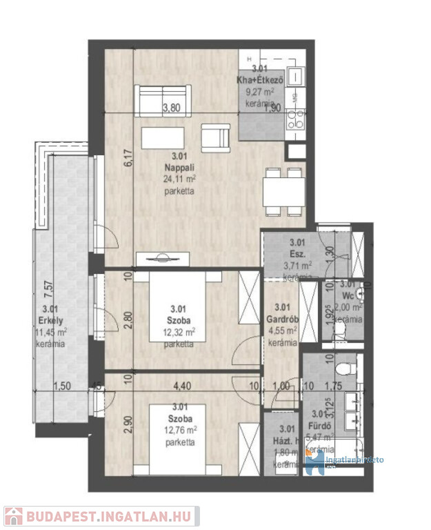
Elhelyezkedése: Társasház Emeleti elhelyezkedés: Emeleten Emelet száma: 3 Épület emeleteinek száma: 7 Tájolása: Déli tájolású Állapota: új Komfort besorolása: összkomfortos Építési éve: 2027 Alapterülete: 76 m2 Szobák száma: 3szoba Közművek: Víz, Villany, Csatorna Fűtés típusa: Padlófűtés, Fan-coil, Hőszivattyú Homlokzat állapot: új Építési mód: Tégla Parkolási lehetőség: Garázsban Kilátás: Udvari kilátás Napelem: Nincs Jellemzői: Alacsony rezsi, Csendes környék, Jó közlekedés Energetikai besorolás: A+ Egyéb jellemzők: Erkély, Lift Tv, Internet: Kábeltévé, Internet Terhelések: Tehermentes ingatlan Eladásra vonatkozó információk: Kizárólag magánszemélyek jelentkezését várjuk
ÚJ TÁRSASHÁZ ÉRTÉKESÍTÉSE KEZDŐDÖTT MEG! VÁLASSZA KI MOST A LEGJOBB ELHELYEZKEDÉSŰ LAKÁST!
VÁSÁROLJON KOCKÁZAT NÉLKÜL, REFERENCIÁKKAL rendelkező beruházótól!

A XIII. kerületben, a Béke tér közelében épül egy 54 lakásos társasház. Változatos alaprajz, az 1. emeleten privát kertkapcsolat, az emeleten erkélyek. A lakások 2, 3 és 4 szobásak.

A lakások főbb jellemzői:

- MINŐSÉGI ÉPÍTŐANYAGOK
- MINŐSÉGI BURKOLATOK
- fűtése: levegős hőszivattyús rendszer (padlófűtés, Fan-coil hűtés)
- fürdőszobában: elektromos törölközőszárítós radiátor előkészítés
- riasztó előkészítés kiépítve - nyitásérzékelő
- elektromos alumínium redőny távirányítóval
- 6 légkamrás, 3 rétegű hőszigetelő üvegezésű ablakok
- több ponton záródó biztonsági, hőszigetelt bejárati ajtó fémtokkal
- 32A energia
- kiváló közlekedés- és infrastruktúra
- csendes utca
- világos lakások
- A hőszigetelési, akusztikai, ill. energetikai szempontok kiemelt kezeléssel kerülnek megvalósításra.
- ÖNÁLLÓ MÉRÉSI lehetőség
- TEREMGARÁZS vásárolható
- TÁROLÓ vásárolható

Bizonyos készültségi fokig a beltéri anyagok választhatók (hidegburkolat, laminált padló, beltéri ajtó).

Birtokba adás/költözés: 2027. augusztus 30.

Közlekedés: kiváló (villamosok /1, 14/, buszok /20E, 30, 30A, 32, 105, 110, 210, 230/, éjszakai járatok /901, 918/, a 3-as metró is pár percen belül elérhető).

További információért és a szabad lakások miatt, kérem, hívjon bizalommal!

AZ IDŐ PÉNZ! SPÓROLJON VELÜNK! NÁLUNK MINDENT EGY HELYEN INTÉZHET!
- ingyenes hitelügyintézés (bankfüggetlen, CSOK, START hitel stb.)
- jogi háttér – projektügyvéd van (0,5%+Áfa)

Lakás részletei

Ár: 143 001 250 Ft
Méret: 76 négyzetméter
Azonosító: 11594896
Cím: Lehel utca
Emelet: 3. emelet
Építőanyag: Tégla
Fűtés jellege: Egyéb
Ingatlan állapota: Kitűnő
Komfort fokozat: Összkomfort
Építési év: 1-5 éves
Elhelyezkedés: Társasház
Kilátás: udvari
Egész szobák: 3

Egyéb jellemzők

  • Erkély
  • Garázs
  • Lift

Térkép


Így keressen budapesti ingatlant négy egyszerű lépésben. Csupán 2 perc, kötelezettségek nélkül!

Szűkítse a budapesti ingatlanok
listáját
Válassza ki a megfelelő
budapesti ingatlant
Írjon a hirdetőnek
Várjon a visszahívásra