Eladó lakás Budapest XIII. ker 101 500 000 Ft

Leírás

ÚJ ÉPÍTÉSŰ INGATLANOK 2027 KÖLTÖZÉSSEL!

Angyalföld:

Angyalföld Budapest XIII. kerületének legnagyobb városrésze, amely az egykori ipari zónából mára modern lakó- és irodanegyeddé alakult át. Hagyományos ipari zónák helyén ma már irodaházak, kereskedelmi egységek és a Duna-parton luxuslakások találhatók.

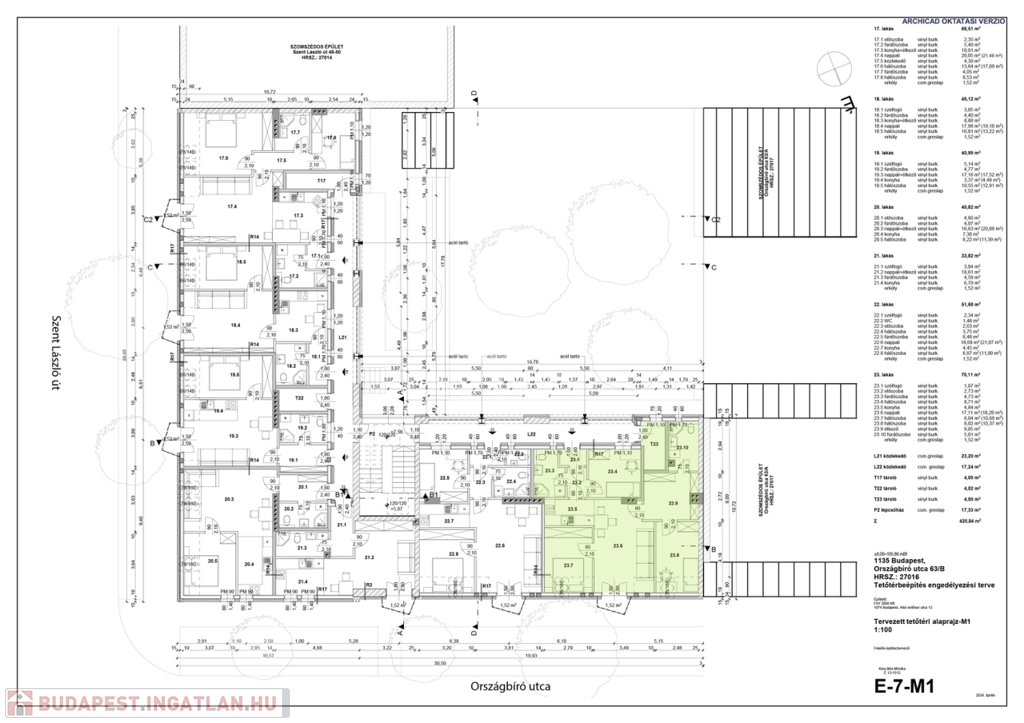
Az épület tettérbeépítése során törekedtünk olyan lakások kialakítására, ami a mai lakásigényeknek felel
meg, mint amerikai konyhás nappali és külön hálószoba. Változatos lakásokat alakítottunk ki úgy
méretükben, mint elrendezésükben.

23 lakás.
Előszoba: 2.73 nm.
Előtér: 1.87 nm.
Fürdőszoba: 4.73 nm.
Konyha: 4.84 nm.
Nappali: 18.20 nm.
Közlekedő: 4.39 nm.
Hálószoba: 8.71 nm.
Fürdőszoba: 4.05 nm.
Halószoba: 8.04 nm.
Hálószoba: 8.02 nm.
Fürdőszoba: 5.01 nm.
Erkély: 1.52 nm.

Fizetés: készültségi fokozathoz kötött fizetési ütemezés.

A további kérdésekkel és a megtekintéssel kapcsolatban, kérem keressen a megadott mobil számon.

Lakás részletei

Ár: 101 500 000 Ft
Méret: 70 négyzetméter
Azonosító: 11600677
Irodai azonosító: 392828
Cím: Országbíró utca
Emelet: 2. emelet
Építőanyag: Tégla
Fűtés jellege: Hőszivattyú
Ingatlan állapota: Kitűnő
Komfort fokozat: Összkomfort
Építési év: Új építésű
Tulajdonviszony: Saját
Kilátás: utcai
Egész szobák: 1
Fél szobák: 3

Egyéb jellemzők

  • Erkély
  • Garázs
  • Lift
  • Pince
  • Tároló

Térkép


Így keressen budapesti ingatlant négy egyszerű lépésben. Csupán 2 perc, kötelezettségek nélkül!

Szűkítse a budapesti ingatlanok
listáját
Válassza ki a megfelelő
budapesti ingatlant
Írjon a hirdetőnek
Várjon a visszahívásra