Eladó lakás Budapest XII. ker 169 000 000 Ft

Leírás

Eladásra kínálunk Kútvölgy kedvelt részén egy Ősfás 1100 m2 területen elhelyezkedő patinás házban elhelyezkedő 93 m2 lakást mely 250 m2-es közvetlen kertkapcsolattal rendelkezik.

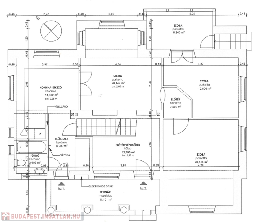
A 93 m2-es lakás az épület földszintjén helyezkedik el.

Lakás elrendezése:

Földszint:
• 3 db. 20,1 - 20,1 - 12,6 m2, 12,6 m2 szoba, + 8,2 m2 télikert
• Konyha - étkező 14,6 m2
• Fürdőszoba 6,2 m2
• Közlekedő 6,2 m2
• Tornác 5,5 m2

Tároló - pince:
• 30 m2

Kert:
• Közvetlen 250-300 m2 kertrész + kerti kemence
• Kocsibeálló 2 autónak is kialakitható terület

A ház 1940-ben épült 55 cm vastag téglafalakkal. Az épület szerkezetileg jó állapotú – feljutása és korszerűsítése esedékes.

Az ingatlant fiatal pároknak -családoknak egyaránt ajánljuk.

A társasházban párhuzamosan kerül értékesítésre a hirdetésben szereplő 93 m2 és a felette található 100 db. első emeleti lakás.

Amennyiben Önnek a vásárláshoz szüksége lenne hitelre egyedi kedvezménnyel,kezdeményezheti a kapcsolatfelvételt bankfüggetlen hitelügyintézőinkkel, teljesen DÍJMENTESEN.

Az ingatlan részletes ismertetése és bemutatása előre egyeztetett időpontban lehetséges, melyet nagyon rugalmasan kezelünk, akár HÉTVÉGÉN is.

Amennyiben felkeltette az érdeklődését, további kérdéseivel kapcsolatban várom jelentkezését!

Lakás részletei

Ár: 169 000 000 Ft
Méret: 93 négyzetméter
Azonosító: 11570464
Irodai azonosító: 388131
Cím: Kútvölgy kertkapcsolatos lakás-ház
Emelet: Földszint
Építőanyag: Tégla
Fűtés jellege: Cirkó
Ingatlan állapota: Felújítandó
Komfort fokozat: Dupla komfort
Építési év: Új építésű
Tulajdonviszony: Saját
Kilátás: panorámás
Egész szobák: 4

Egyéb jellemzők

  • Erkély
  • Garázs
  • Lift
  • Pince
  • Tároló

Térkép


Így keressen budapesti ingatlant négy egyszerű lépésben. Csupán 2 perc, kötelezettségek nélkül!

Szűkítse a budapesti ingatlanok
listáját
Válassza ki a megfelelő
budapesti ingatlant
Írjon a hirdetőnek
Várjon a visszahívásra