Eladó lakás Budapest XII. ker, Krisztinaváros, 139 000 000 Ft

Leírás

Eladó ingatlant keresel Budapest XII. kerületben? ~ Eladó Krisztinavárosban egy loggiás, panorámás, háromszobás lakás liftes társasházban, kiváló elosztással és budai várra néző kilátással. ~ Eladó Budapesti Lakás Kód: BPLS31.

Település: Budapest
Terület: 78 m2
Ingatlan típusa: lakás
Ingatlan állapota: jó állapotú - építési év 1964, felújítás 2018
Szint(ek): 7
Emelet: 6
Lift: van
Szobák: 3 (nappali és 2 hálószoba)
Fürdőszoba és WC: van , külön WC
Fűtés: házközponti (gázfűtés)
Légkondícionáló: igen ( 1 db)
Tetőtér: nem tetőtéri
Kilátás: Budai várra néző, panoráma a környező hegyekre
Kertkapcsolatos: közö kisebb gondozott kert
Parkolás: közterület (22.000 Forint az éves bérlet)
Pince: 6 m2-es tároló, 20m2-es közös tároló
Riasztó: előkészítve
Villany: van
Víz: van
Gáz: van
Csatorna: van

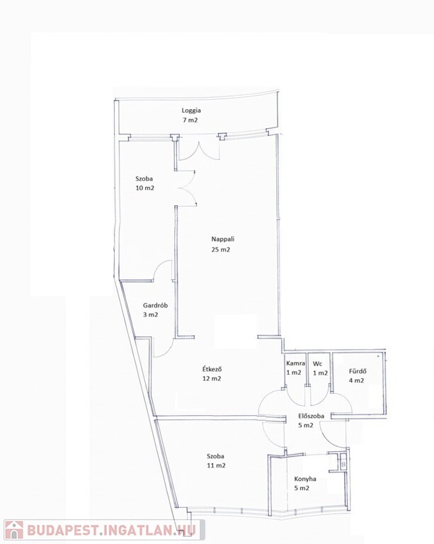
Budapest XII. kerületének egyik kedveltebb részén, Krisztinavárosban, a Maros utcában kínálunk megvételre egy liftes társasház 6. emeletén (nem zárószint) található, az alapító okirat szerint 75 m²-es, nappali + 2 szobás, járható gardróbos, 7 m²-es loggiás lakást.

A vételár tartalmazza a képeken látható beépített és nem beépített bútorokat, hűtőt, mosogatógépet és egyéb berendezéseket is (a dísztárgyak kivételével).

Épület

A társasház 1964-ben épült Szabó István Ybl-díjas építész tervei alapján (link).

Az épület folyamatosan karbantartott, stabil anyagi háttérrel rendelkezik.

A társasház megtakarítási számláján több mint 15 millió forint áll rendelkezésre, a társasházi tulajdonban lévő albetét pedig bérbe van adva.

A lapostető vízszigetelés felújítása 2022-ben teljes körűen megtörtént.

A lakók kényelmét földszinti, tágas kerékpár- és babakocsi-tároló, valamint egy gondozott, füves belső kert szolgálja.

Parkolás az utcán, lakcímbejelentéssel kedvezményes díjon (évi 22 500 Ft) megoldható.

A tulajdoni hányad részét képezi a pinceszinten egy száraz, zárható tároló is.

Lakás jellemzői

A kelet–nyugati tájolású, valódi faparkettával burkolt otthon minden napszakban jó megvilágítású.

A nappalihoz kapcsolódó loggia csendes, zöld területre és a budai hegyekre néz, míg a lakás keleti oldaláról a Budai Vár panorámája tárul elénk.

Az ingatlan elosztása kiváló:
76 m²-en előszoba, konyha, kamra, hall, tágas nappali, két hálószoba, járható gardrób, fürdőszoba és külön WC kapott helyet, melyet egy 7 m²-es loggia egészít ki.

Elrendezése:

előszoba: 5 m²-es

konyha + kamra: 5 m²-es

étkező (hall): 12 m²-es

nappali: 25 m²-es

hálószoba: 11 m²-es

hálószoba: 10 m²-es

gardrób: 3 m²-es

fürdőszoba: 4 m²-es

külön WC: 1 m²-es

loggia: 7 m²-es

A csatolt alaprajz tájékoztató jellegű.

A nyílászárók prémium minőségűek:

- Nívó biztonsági bejárati ajtó
- 2024-ben, tokkal együtt cserélt, háromrétegű, bukó-nyíló Schüco ablakok és teraszajtó, kiváló hő- és hangszigeteléssel
- Távirányítós elektromos redőnyök
- Pliszé szúnyoghálók és részben blackout rolók
- Méretre gyártott, faerezetű beltéri ajtók

A fűtést házközponti rendszer biztosítja, a nappaliban klímaberendezés található.

A melegvíz-ellátás villanybojlerrel történik, a lakásban nincs gázóra.

A vizes helyiségek igény szerint korszerűsíthetők, ugyanakkor minden berendezés működőképes és karbantartott.

A közös költség tartalmazza a fűtési és a hideg víz- és csatornadíj költségét is.

Az áramfogyasztás egyedi mérőóra alapján fizetendő.

Az ingatlan otthonos hangulatú, elhelyezkedése és adottságai miatt hosszú távú lakásra vagy befektetési célra, bérbeadásra is kiválóan alkalmas.

Környezet

A Maros utca rendezett és tágas, szépen gondozott fákkal, a környék közbiztonsága kiváló.

Néhány perc gyalogtávon belül jó nevű éttermek, pékségek, cukrászdák, fagyizók, nagyobb élelmiszerboltok, egy kisebb éjjel-nappali üzlet és egy ügyeletes gyógyszertár is megtalálhatók.

A közlekedés kényelmes: metró, villamos, busz, valamint vasút is könnyen elérhetők.

A környéken számos park és zöldterület található (Városmajor, Vérmező, Gesztenyés kert, Millenáris), valamint bevásárlóközpontok (MOM Park, Mammut, Hegyvidék Központ) és a Fény utcai piac is 15 percen belül elérhető.

Játszóterek, óvodák, iskolák, gimnáziumok és nemzetközi intézmények szintén a közelben szép számban találhatók.

Egyéb információ

Az ingatlan per- és tehermentes, 1/1 tulajdonban van, könnyen hitelezhető, birtokbaadása akár azonnal lehetséges.

MIÉRT FOGJA SZERETNI EZT AZ OTTHONT?

A lakás Budapest egyik legértékállóbb városrészében helyezkedik el, ahol a városi élet és a zöld környezet egyaránt jelen van.

A panoráma, a kiváló elosztás és a csendes loggia ritka kombinációt alkot a fővárosi kínálatban.

Befektetésnek és saját otthonnak is kiemelkedő választás.

ÉRTÉKELÉS

Ez az ingatlan a budai lakáspiac egyik klasszikus, stabil értéket képviselő típusa: kiváló elhelyezkedés, panoráma és jól fenntartható műszaki állapot jellemzi.

Hosszú távon is biztonságos befektetés.

ÁR-ÖSSZEHASONLÍTÁS A BUDAPESTI KÖRNYÉKEN

„Az eladó ingatlan ára versenyképes, mivel a környékbeli városrészek hasonló adottságú lakásai jellemzően az alábbi ársávban mozognak:”

Budai oldal (átlag): 1,1 – 1,9 M Ft/m²

XII. kerület: 1,4 – 2,2 M Ft/m²

XI. kerület: 1,2 – 1,8 M Ft/m²

II. kerület: 1,5 – 2,4 M Ft/m²

III. kerület: 1,0 – 1,6 M Ft/m²

XIII. kerület: 1,1 – 1,7 M Ft/m²

V–VI–VII. kerület: 1,3 – 2,0 M Ft/m²

ÁR-ÖSSZEHASONLÍTÁS AZ EURÓPAI KÖRNYEZETBEN

„Az eladó ingatlan ára versenyképes, mivel a hasonló adottságú lakások európai nagyvárosokban jellemzően az alábbi ársávban mozognak:”

Berlin: 2,0 – 4,5 M Ft/m²

Hamburg: 2,5 – 5,5 M Ft/m²

Frankfurt: 3,0 – 6,0 M Ft/m²

Vienna: 3,5 – 7,0 M Ft/m²

Prague: 2,5 – 5,0 M Ft/m²

Bratislava: 2,0 – 4,0 M Ft/m²

Cologne / Düsseldorf: 2,5 – 5,5 M Ft/m²

A budapesti lakás ára ezekhez képest kedvezőbb belépési szintet kínál, miközben erős bérleti piaccal rendelkezik.

MIÉRT ÉRI MEG MEGVÁSÁROLNI?

• Kiemelt budai elhelyezkedés
• Panoráma a Budai Várra és a hegyekre
• Kiváló tömegközlekedési és szolgáltatási környezet
• Azonnal költözhető, jó állapotú lakás
• Befektetésre és bérbeadásra is ideális
• Stabil értéktartás a budai lakáspiacon

KAPCSOLAT

Tisztelettel kérünk minden érdeklődőt, hogy közvetlenül ne keresse fel az eladót!

Az ingatlan megtekintése irodánkkal egyeztetve történik.

Kapcsolattartó: Weisz Gabriella

Telefon: +36 30 474 5901

Email: [email protected]

Kérjük, az érdeklődés során hivatkozzon a BPLS31 ingatlan kódra.

Kérjük, egyeztessen időpontot velünk.

Tegye ezt a kiváló adottságú budai lakást új otthonává vagy értékálló befektetésévé!

Lakás részletei

Ár: 139 000 000 Ft
Méret: 78 négyzetméter
Azonosító: 11599769
Irodai azonosító: BPLS31
Városrész: Krisztinaváros
Emelet: 6. emelet
Építőanyag: Kérdezzen rá a hirdetőtől »
Fűtés jellege: Házközponti (egyedi mérővel)
Ingatlan állapota:
Tulajdonviszony: Saját
Egész szobák: 3
Nappalik: 1

Egyéb jellemzők

  • Erkély
  • Klíma
  • Lift
  • Tároló

Térkép


Így keressen budapesti ingatlant négy egyszerű lépésben. Csupán 2 perc, kötelezettségek nélkül!

Szűkítse a budapesti ingatlanok
listáját
Válassza ki a megfelelő
budapesti ingatlant
Írjon a hirdetőnek
Várjon a visszahívásra