Eladó lakás Budapest XI. ker, Szentimreváros, 79 900 000 Ft

Leírás

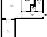
A XI. kerületben a Villányi úton, a Feneketlen tó közvetlen közelében eladó egy 52 nm-es, 2 szoba + konyhás (kisebb átalakítással 3 szobássá alakítható), távfűtéses, csendes lakás.

Nagy zöldfelülettel rendelkező lakóparkban több épület is található, az ingatlan ablakai a ház kertje felé néznek, így rendkívül csendes és nyugodt a lakás. A lakásban az előszoba, a konyha és a fürdő járólappal, a szoba parkettával burkolt.

Rendkívül alacsony költségű lakás, közös költség: 22.220 Ft/hó.

A lakás központi elhelyezkedése miatt könnyedén a város bármely pontján ott lehetünk mivel a Kosztolányi Dezső tér és a Móricz Zsigmond körtér is csak pár perc sétára található, így a 4-es metró és a fonódó villamoshálózat is.

Befektetés vagy iroda céljára is alkalmas a lakás.

Könnyen és gyorsan elérhető a legtöbb kereskedelmi és szolgáltató egység, többek között az Allee és a Bartók Béla út ahol éttermek, kávézók, bárok, bankfiókok, bevásárló központ, szépségszalon, általános iskola, művelődési ház, konditerem található.

A közeli Feneketlen tónál kikapcsolódási és sportolási lehetőségek érhetőek el (teniszpálya, frissen felújított rekortán futópálya, kültéri fitnesz eszközök).

Az ingatlan tehermentes, gyorsan birtokba vehető.

Irodánk ingyenes hiteltanácsadással áll ügyfeleink rendelkezésére. A VEVŐK RÉSZÉRE A KÖZVETÍTÉS DÍJMENTES. A hirdetésben szereplő adatok tájékoztató jellegűek!

Lakás részletei

Ár: 79 900 000 Ft
Méret: 52 négyzetméter
Azonosító: 11580631
Városrész: Szentimreváros
Emelet: 1. emelet
Építőanyag: Tégla
Fűtés jellege: Távfűtés
Ingatlan állapota: Felújítandó
Komfort fokozat: Összkomfort
Építési év: 50 évesnél régebbi
Elhelyezkedés: Társasház
Tulajdonviszony: Saját
Kilátás: kertre néző
Kert: Közös telek
Egész szobák: 2

Egyéb jellemzők

  • Lift

Térkép


Így keressen budapesti ingatlant négy egyszerű lépésben. Csupán 2 perc, kötelezettségek nélkül!

Szűkítse a budapesti ingatlanok
listáját
Válassza ki a megfelelő
budapesti ingatlant
Írjon a hirdetőnek
Várjon a visszahívásra