Eladó lakás Budapest X. ker 140 000 000 Ft

Leírás

***X. kerület, a METRODOM LAKÓPARKBAN 4 szobás ERKÉLYES lakás eladó!***

***KIZÁRÓLAG AZ OTP INGATLAN KÍNÁLATÁBAN!***

Eladó egy 2019-ben épült, MODERN kialakítású lakás a 3-as METRÓ vonalának közvetlen közelében, a METRODOM PARKBAN.
A környék infrastruktúrája és a lakópark adottságai IDEÁLIS életteret biztosítanak.

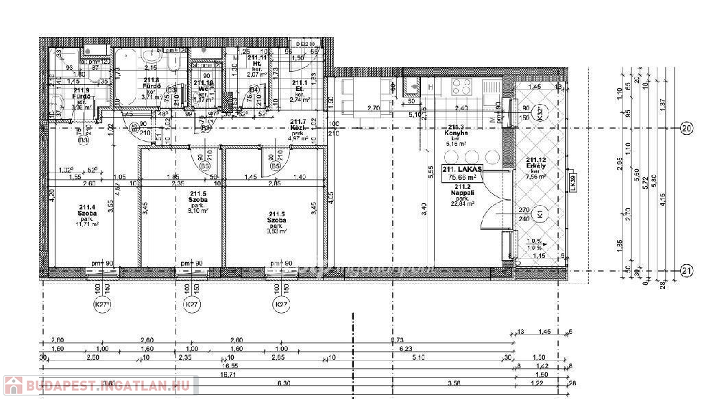
A lakás három KÜLÖN NYÍLÓ hálószobával, TÁGAS amerikai konyhás nappalival, valamint két fürdőhelyiséggel rendelkezik - az egyik káddal, a másik zuhanyzóval felszerelt.

A PARKOSÍTOTT, három hektáros területen fekvő lakókomplexum számos kényelmi szolgáltatást kínál, például fitneszterem, játszótér és zöldövezet áll rendelkezésre a kikapcsolódáshoz.
A lakók biztonságáról és komfortjáról PORTASZOLGÁLAT, klubhelyiség és egy kisgyermekes családok számára kialakított baba-mama szoba gondoskodik.

A környezet CSALÁDBARÁT, fiatalos és összetartó közösséggel, amely ideális választás lehet gyermekesek számára is.

Helyiségek elrendezése:
Előtér
Közlekedő folyosó
Nappali egybenyitva a konyhával és étkezővel
Három KÜLÖN NYÍLÓ hálószoba
Két fürdőszoba WC-vel (egy kádas, egy zuhanyzós)
Gardróbhelyiség
7,5 nm-es ERKÉLY

További felszereltség:
OKOS OTTHON rendszer
Okos klíma, amely integrálható a rendszerbe
Intelligens termosztátok és kapcsolók

A közös költség havonta 45.000 Ft, amely tartalmazza a portaszolgálatot, a kertész munkadíját, a lépcsőház takarítását, valamint a hulladékszállítást is.

Ha ingatlan vásárlásával egy ÉRTÉKÁLLÓ BEFEKTETÉST is szeretne egyben, akkor ez egy remek lehetőség az ön számára.

Az OTP Ingatlanpont, mint egyetlen közvetlen banki hátterű ingatlanközvetítő társaság teljes körű ügyintézéssel és kedvezményes pénzügyi konstrukciókkal áll ügyfelei rendelkezésére!
VIP-szolgáltatást nyújtunk az OTP-hiteltermékek ügyintézésében.
Jogi és pénzügyi segítséget nyújtanak szakértőink, hogy az adásvétel folyamata gördülékeny legyen.

Ha felkeltette érdeklődését az ingatlan, kérem, hívjon bizalommal akar hétvégén is!

#metrodom #10kerulet #okosotthon

Lakás részletei

Ár: 140 000 000 Ft
Méret: 75 négyzetméter
Azonosító: 11545420
Irodai azonosító: M305564-4971342
Cím: Budapest 10. ker.i 75 nm-es lakás eladó
Emelet: 1. emelet
Építőanyag: Tégla
Fűtés jellege: Házközponti (egyedi mérővel)
Ingatlan állapota: Kitűnő
Komfort fokozat: Dupla komfort
Építési év: 6-10 éves
Kilátás: utcai
Egész szobák: 4

Egyéb jellemzők

  • Erkély
  • Garázs
  • Klíma
  • Lift

Térkép


Így keressen budapesti ingatlant négy egyszerű lépésben. Csupán 2 perc, kötelezettségek nélkül!

Szűkítse a budapesti ingatlanok
listáját
Válassza ki a megfelelő
budapesti ingatlant
Írjon a hirdetőnek
Várjon a visszahívásra