Eladó lakás Budapest VIII. ker 172 500 000 Ft

Leírás

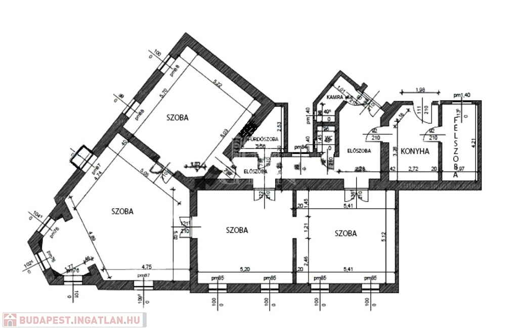
Fényben úszó 177 m² alapterülettel rendelkező saroklakás a II. János Pál pápa térnél – végtelen lehetőségek tára.

A befektetés és az álomotthon találkozása.
Budapest VIII. kerületének egyik legígéretesebb részén, a Népszínház utcában kínálunk eladásra egy kivételes adottságokkal rendelkező, 2. emeleti nagypolgári saroklakást.

Az ingatlan legnagyobb értéke az eredeti kialakításában rejlik: a hatalmas, tágas terek és a logikus elosztás lehetővé teszi a teljes újragondolást, legyen szó luxusrezidenciáról vagy üzleti beruházásról.

Miben rejlik a lakás különlegessége?

• Hamisítatlan polgári hangulat: megmaradtak a klasszikus stílusjegyek, a lenyűgöző belmagasság, az elegáns belső arányok és a minden szobában megtalálható, működő cserépkályhák.
• Rugalmas és körbejárható alaprajz: a terek láncolata nemcsak elegáns térérzetet ad, hanem rendkívül praktikus is. A belső falak szabadon alakíthatók, a két külön bejárat és a körbejárható kialakítás révén az ingatlan akár 4-5 önálló stúdiólakássá is átépíthető.
• Rendkívüli fényviszonyok: a sarokelhelyezkedésnek és a nagyméretű, dupla utcai ablakoknak köszönhetően a terek egész nap világosak. Az egyik szobából saját erkély nyílik.
• Tágas helyiségek: az ingatlan négy impozáns méretű szobából (45 m², 30 m², 26 m², 27 m²) és egy 8 m²-es félszoba-méretű helyiségből áll, kiegészülve egy udvari nézetű konyha-étkezővel.

Hasznosítási javaslatok:

A házban az Airbnb/rövid távú kiadás engedélyezett, így befektetők számára kiemelkedő hozamot ígér. Emellett a méretei és a lokációja miatt tökéletes választás lehet:
• Exkluzív irodának, ügyvédi irodának vagy magánrendelőnek.
• Kreatív stúdiónak, vagy művészeti galériának.
• Többgenerációs családi otthonnak, ahol mindenki saját lakosztályt kaphat.

Lokáció és fejlődés:

Az ingatlan mindössze 200 méterre található a megújult II. János Pál pápa tértől. A környék infrastruktúrája kiváló, a belváros és az egyetemek pár perc alatt elérhetőek. A városrész dinamikus fejlődése és a prémium szolgáltatások iránti növekvő igény garantált értéknövekedést biztosít.

Kedvezményes hiteligénylés, CSOK, BABAVÁRÓ támogatás esetén, kezdeményezheti a kapcsolatfelvételt díjmentesen bankfüggetlen hitelszakértő munkatársunkkal.

Az ingatlan megtekintése előre egyeztetett időpontban lehetséges, akár hétvégén is.

Amennyiben felkeltette az érdeklődését, további kérdéseivel kapcsolatban várom a jelentkezését.

Lakás részletei

Ár: 172 500 000 Ft
Méret: 177 négyzetméter
Azonosító: 11604879
Irodai azonosító: 393418
Cím: Népszínház utca
Emelet: 2. emelet
Építőanyag: Tégla
Fűtés jellege: Héra
Ingatlan állapota:
Komfort fokozat: Összkomfort
Építési év: 50 évesnél régebbi
Tulajdonviszony: Saját
Kilátás: utcai
Egész szobák: 4
Fél szobák: 1

Egyéb jellemzők

  • Erkély
  • Garázs
  • Lift
  • Pince
  • Tároló

Térkép


Így keressen budapesti ingatlant négy egyszerű lépésben. Csupán 2 perc, kötelezettségek nélkül!

Szűkítse a budapesti ingatlanok
listáját
Válassza ki a megfelelő
budapesti ingatlant
Írjon a hirdetőnek
Várjon a visszahívásra